Ga naar inhoud

Te koop: woonhuis Ellen van Langenpad 46 3118 JT Schiedam

Beschikbaar

Bezichtiging plannen

€ 650.000,- k.k.

bied op deze woning

Duurzaam wonen in stijl! Energiezuinige (A+++) gezinswoning in Park Harga

Wonen aan het groen, met alle comfort van nu én klaar voor de toekomst, dat kan in deze moderne en energiezuinige 5-kamer eengezinswoning in de geliefde wijk Park Harga!
Gebouwd in 2021, op eigen grond en met een energielabel A+++, combineert deze woning strak design met ultiem wooncomfort.

De woning beschikt over 136 m² aan woonruimte en is gebouwd met hoogwaardige, duurzame materialen. Dankzij de bodemwarmtepomp, zonnepanelen, drievoudige beglazing en vloerverwarming én -koeling op alle verdiepingen (inclusief de zolder), woon je hier niet alleen comfortabel, maar ook energiezuinig — met nagenoeg geen energielasten!

De ruime uitgebouwde woonkamer van maar liefst 37 m² is licht en sfeervol, met dubbele openslaande deuren naar de zonnige achtertuin op het westen. Hier geniet je in alle privacy van lange zomeravonden op het terras, compleet met berging, vorstvrije buitenkraan en achterom.
De luxe matzwarte keuken met kookeiland en zitbar is een echte blikvanger — dé plek waar koken en samenzijn moeiteloos samenkomen.

Op de verdiepingen vind je vier goed bemeten slaapkamers en een moderne badkamer met half vrijstaand ligbad, inloopdouche en stijlvol wastafelmeubel. Alles is strak afgewerkt en instapklaar — hier hoef je écht niets meer te doen!

Wonen in Park Harga betekent rust, ruimte en comfort in een parkachtige omgeving. De wijk is modern, groen en kindvriendelijk, met volop sport- en speelvoorzieningen. Scholen, winkels en openbaar vervoer (metrostation Schiedam Nieuwland) liggen in de directe nabijheid. Ook de snelwegen A20 en A4 zijn binnen enkele minuten bereikbaar, waardoor steden als Rotterdam, Delft, Den Haag en Hoek van Holland strand vlot te bereiken zijn.

Indeling

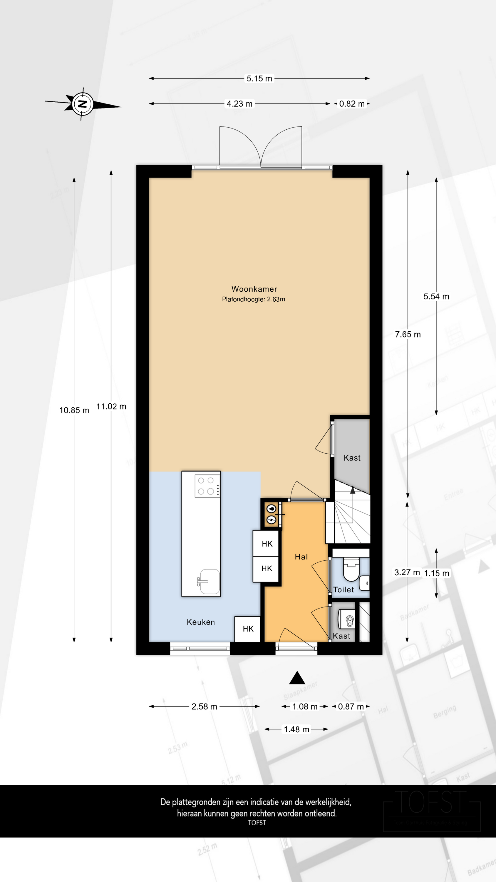
Begane grond
Aan een autovrij pad, met vrij uitzicht op groen en een vijver aan de voorzijde, ligt de verzorgde voortuin. Deze is fraai aangelegd met antracietkleurige bestrating, een grindbed, een beukenhaag en ruimte voor een gezellig zitje.

De entree van de woning bevindt zich onder een luifel. Via de ruime ontvangsthal, voorzien van garderoberuimte, een vaste kast met de bodemwarmtepomp, meterkast, trapopgang naar de eerste verdieping en een grote plavuizen vloer, bereikt u de overige vertrekken. Het moderne toilet is uitgerust met een hangend closet, fonteintje en is keurig betegeld met fraaie wandafwerking.

Aan de voorzijde bevindt zich de moderne open keuken van circa 9 m², uitgevoerd met houtlook matzwarte fronten en een betonlook werkblad. De keuken is voorzien van alle hedendaagse luxe inbouwapparatuur, waaronder een inductie-combikookplaat met downdraft-afzuiging, combi-stoomoven, koel-vriescombinatie, vaatwasser en een spoelbak met kokendwaterkraan. De keuken beschikt bovendien over een praktische zitbar met stopcontact en een sfeervolle koffiecorner.

De uitgebouwde, tuingerichte woonkamer van maar liefst 37 m² is voorzien van een moderne plavuizen vloer met hoge plinten, strakke wandafwerking, een trapkast en dubbele openslaande deuren naar de achtertuin.

De fraai aangelegde, onderhoudsarme achtertuin van circa 40 m² ligt op het zonnige westen en biedt veel privacy. De tuin beschikt over een ruim terras, stijlvolle houten erfafscheidingen, een vrijstaande houten berging van circa 5 m² met elektra, een vorstvrije buitenkraan en een praktische achterom.

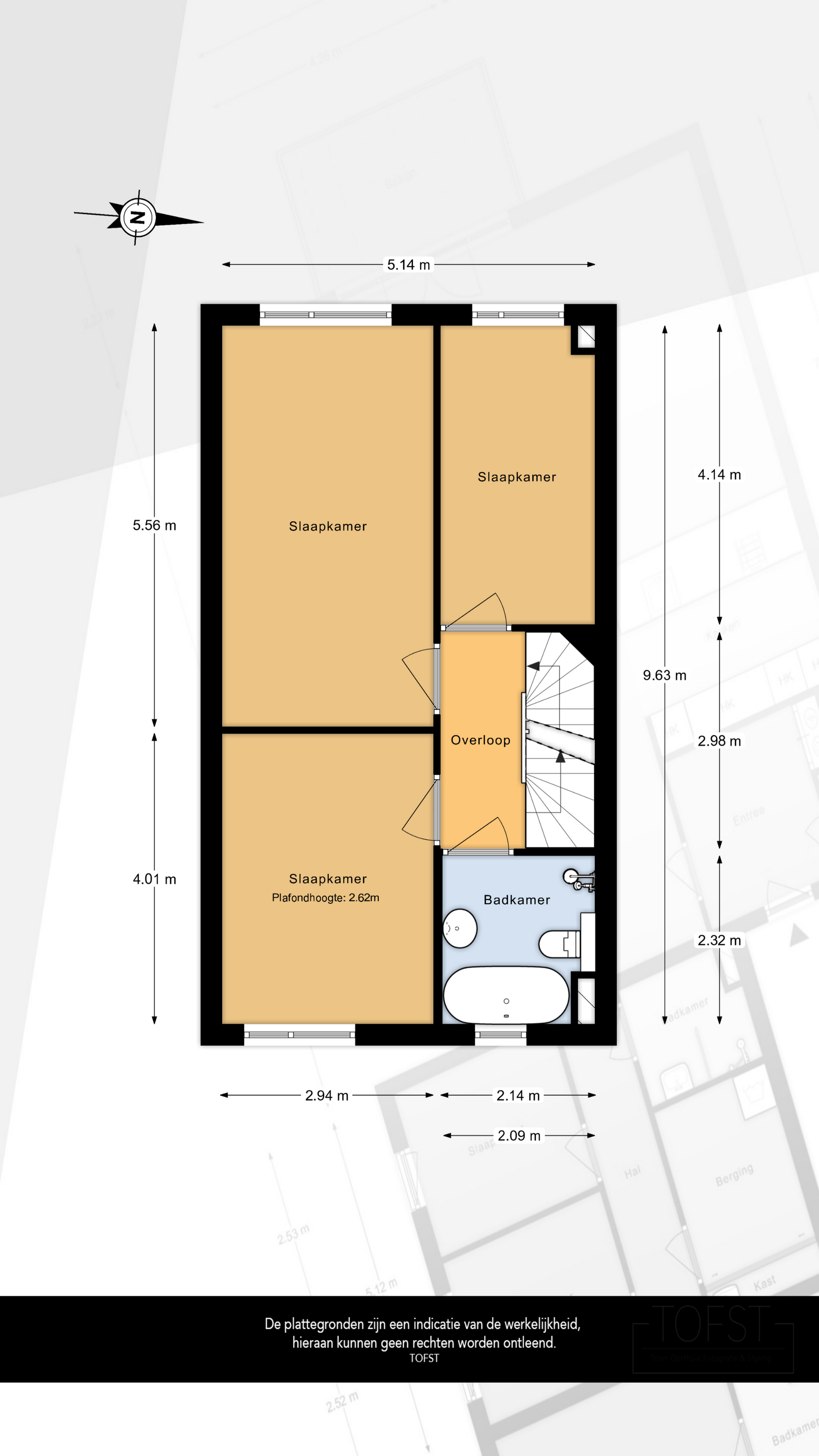
Eerste verdieping
Overloop met een moderne pvc-vloer in betonlook, doorgelegd over de gehele verdieping, voorzien van hoge plinten, strakke wandafwerking en een open trap naar de tweede verdieping.

Slaapkamer 1: aan de voorzijde, circa 12 m².
Slaapkamer 2: aan de achterzijde, circa 16,5 m².
Slaapkamer 3: aan de achterzijde, circa 9 m².

De moderne badkamer van circa 5 m² is compleet uitgerust met een inloopdouche voorzien van stortdouche en easydrain-regengoot, een half vrijstaand ligbad (LUCA ‘semi back to wall bad’), tweede hangend toilet, wastafelmeubel met waskom en spiegel, designradiator en mechanische ventilatie. De badkamer is tot aan het plafond fraai betegeld.

Tweede verdieping
Ruime open zolderverdieping met dakraam, pvc-vloer in betonlook en een strakke afwerking. Deze ruimte biedt de mogelijkheid tot het creëren van twee extra (slaap)kamers.

In de inpandige berging/wasruimte bevinden zich de opstelplaatsen voor de WTW-installatie (Warmte Terug Win systeem) , omvormer van de zonnepanelen en de wasmachine- en drogeraansluiting.

Bijzonderheden
– Moderne 5-kamer eengezinswoning met vrij uitzicht aan zowel de voor- als achterzijde;
– Woonoppervlakte 136 m² (conform NEN2580 meetrapport);
– Gelegen op 116 m² eigen grond;
– Uitgebouwde woonkamer van 37 m² met luxe keuken voorzien van kookeiland;
– Zonnige achtertuin op het westen voorzien van achterom en vrijstaande houten berging;
– 4 ruime slaapkamers met luxe badkamer voorzien van half vrijstaand ligbad;
– Opgeleverd in 2021, volledig geïsoleerd, energielabel A+++, volledig v.v. vloerverwarming en -koeling en klimaatbeheersing;
– Gebruik van luxe materialen en een het hoog afwerkniveau;
– Oplevering in overleg, maar een snelle oplevering behoord tot de mogelijkheden;
– Achterzijde woning, ruime parkeergelegenheid met openbare oplaadplaatsen voor elektrische auto’s. Met de auto is de woning goed bereikbaar;
– Moderne, groen en kindvriendelijke woonwijk, met volop sport- en speelvoorzieningen. Scholen en openbaar vervoer (metrostation Schiedam Nieuwland) liggen in de directe nabijheid;
– Ook de snelwegen A20 en A4 zijn binnen enkele minuten bereikbaar, waardoor steden als Rotterdam, Delft, Den Haag, Hoek van Holland strand vlot te bereiken zijn.

Overige
Huis kopen? Neem uw eigen NVM Aankoopmakelaar mee!
Download nu via www.dewittegarantiemakelaars.nl de brochure van deze woning.

Een daadwerkelijke koopovereenkomst komt pas tot stand nadat beide partijen de schriftelijke overeenkomst hebben ondertekend.

Toelichtingsclausule Meetinstructie
De Meetinstructie is gebaseerd op de NEN2580. De Meetinstructie is bedoeld om een meer eenduidige manier van meten toe te passen voor het geven van een indicatie van de gebruiksoppervlakte. De Meetinstructie sluit verschillen in meetuitkomsten niet volledig uit, door bijvoorbeeld interpretatieverschillen, afrondingen of beperkingen bij het uitvoeren van de meting.

Nadrukkelijk zij vermeld, dat deze vrijblijvende informatieverstrekking niet als een aanbieding of een offerte mag worden beschouwd. Aan deze gegevens kunnen geen rechten worden ontleend.

  • 136 m2
  • 116 m2
  • 4

Kenmerken Ellen van Langenpad 46

Overdracht

Vraagprijs€ 650.000,- k.k.
AanvaardingIn overleg

Oppervlaktes en inhoud

Perceel oppervlakte116 m2
Woonoppervlakte136 m2
Inhoud482 m3

Bouw

SoortEengezinswoning
BouwvormBestaande bouw
Bouwjaar2021
Dak typeZadeldak
IsolatievormenVolledig geïsoleerd
EnergielabelA+++

Indeling

Aantal verdiepingen3
Aantal kamers5
Aantal slaapkamers4
Aantal badkamers1

Maandlasten

Ligging Ellen van Langenpad 46

Voorzieningen

Centraal gelegen informatie over de buurt

Aantal inwoners

In de gemeente

77.838

Leeftijd

in percentages van totaal

Huishoudsamenstelling

in percentages van totaal

33%

20% NL

25%

20% NL

42%

20% NL

Vergelijkbaar woningaanbod