Ga naar inhoud

Te koop: appartement Lepelaarsingel 142 3136 PC Vlaardingen

De Witte Garantiemakelaars Vlaardingen
Neem contact met mij op

Verkocht

€ 275.000,- k.k.

bied op deze woning

Leuk 3 voorheen 4 kamer appartement gelegen op de 6e woonlaag met lift voorzien van een heerlijk balkon op het zonnige westen, eigen berging box en parkeren op aaneengesloten parkeerterrein gelegen in de geliefde woonwijk Holy nabij winkelvoorzieningen en openbaar vervoer.

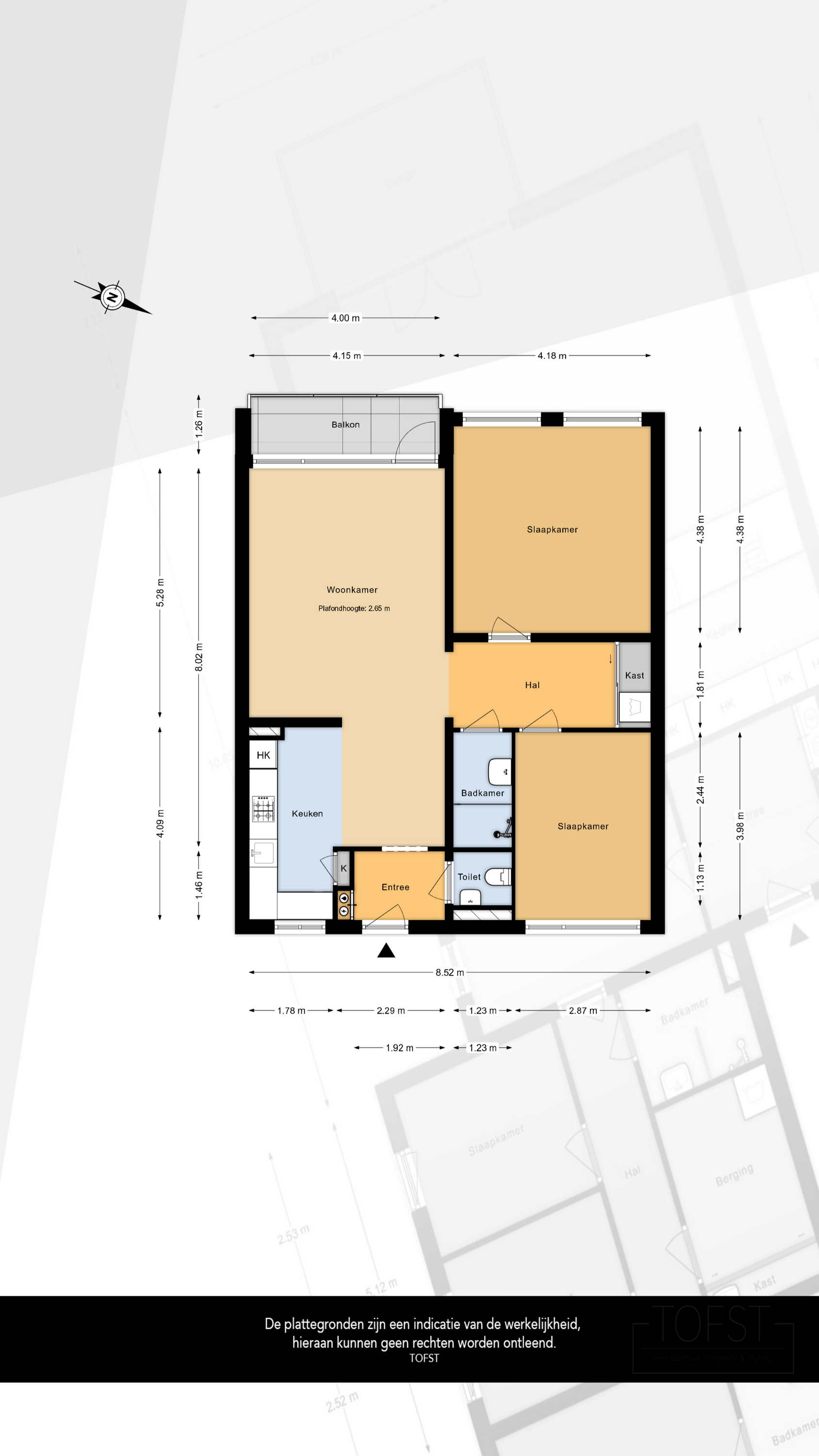
Dit mooie appartement is voorzien van een ruime en zonnige woonkamer van maar liefst 27 m² met moderne hout look laminaatvloer en aansluitend een ruim balkon. Aan de voorzijde vindt u de open keuken met voldoende bergruimte en koffiecorner. Naast de keuken is ruimte voor een goede eetkamertafel. Verder zijn er 2 voorheen 3 goede slaapkamers, waarbij het eenvoudig is weer 3 slaapkamers te realiseren. Er is een keurige badkamer met een douchecabine en een wastafelmeubel met spiegel. En in de ruime ontvangsthal vindt u een modern toilet met een wasbakje.

De woning zelf is keurig afgewerkt, goed onderhouden, volledig geïsoleerd met dubbel glas, energielabel C en uiteraard geheel voorzien van centrale verwarming. Het appartement maakt deel uit van een actieve vereniging van eigenaren en een goed onderhouden complex met lift en een ruime eigen berging box in de onderbouw. Uw auto kunt u parkeren op het voor bewoners afgesloten eigen terrein.

De ligging in De Nieuwe Vogelbuurt is ideaal en in de directe omgeving is winkelcentrum De Loper aanwezig, waar u onder andere terecht kunt voor een divers winkelaanbod. Zowel de bus als de tram en uitvalswegen als de A20 en A4 om in Rotterdam, Delft of Hoek van Holland te komen zijn in de omgeving van het appartement aanwezig. Indien u even helemaal tot rust wil komen ligt op fietsafstand natuurgebied De Broekpolder, waar u gebruik kunt maken van diverse wandel- en fietsroutes.

Indeling:

Begane grond
Afgesloten algemene entree voorzien van brievenbussen, bellentableau, toegang tot de dubbele lift en trappenhuis.

Zesde woonlaag
Entree woning, ruime ontvangsthal voorzien van meterkast, garderoberuimte en een toilet met hangend closet betegeld tot het plafond en wasbakje.

Ruime en zonnige woonkamer van circa 27 m² voorzien van moderne hout look laminaatvloer met hoge plinten en toegang tot het balkon.
Balkon van circa 5 m² met composiet vlonder delen gelegen op het zonnige westen waar u heerlijk kunt genieten van de zon of met het elektrische uitvalscherm in de schaduw.

Ruime en moderne open keuken van circa 8 m² met een granieten blad en voorzien van alle hedendaagse keukenapparatuur als een 4-pits gaskookplaat op glas met afzuigschouw, koel-vriescombinatie, vaatwasser, wasmachine, spoelbak met elektrische boiler, voldoende kastruimte, grindvloer en een koffiecorner.

Toog naar speelhal circa circa 8 m² met toegang tot alle slaapkamers en vaste kast met opstelling wasdroger.

Slaapkamer 1 aan de voorzijde circa 11.5 m² en voorzien van hout look laminaatvloer.
Slaapkamer 2 aan de achterzijde (voorheen 2 slaapkamers en eenvoudig terug te veranderen) circa 18 m² en voorzien van hout look laminaatvloer.

Keurige badkamer circa 3 m² voorzien van ruime douchecabine, wastafelmeubel met spiegel en kast, betegeld in grijs/groen/witte kleurstelling tot het plafond en afzuiging.

Eigen berging box in de onderbouw van circa 6 m².

Bijzonderheden
– Modern gelijkvloers 3 voorheen 4 kamer appartement op de 6e woonlaag met lift;
– Woonoppervlakte 85 m² (gemeten conform de meetinstructie);
– 27 m² ruime en zonnige woonkamer met deur naar het balkon op het zonnige westen met zicht op groene omgeving;
– Moderne keuken met veel bergruimte;
– 2 voorheen 3 goede slaapkamers;
– Keurig nette badkamer met een douchecabine en een wastafelmeubel;
– Eigen berging box in de onderbouw;
– Parkeermogelijkheid op naastgelegen afgesloten eigen parkeerterrein;
– Keurig afgewerkt, goed onderhouden, gebouwd in 1964, energielabel C, elektrische boiler voor warm water en uiteraard geheel voorzien van centrale verwarming;
– Actieve vereniging van eigenaren, bijdrage € 222,52 per maand, exclusief € 50 voorschot blokverwarming;
– Gelegen op langdurige vaste lage erfpacht van € 100 per jaar tot en met 31 maart 2064;
– Goede scholen, uitstekend winkelcentrum ‘De Loper’, groen- en recreatiegebied Midden Delfland en de Broekpolder en kinderboerderij Holywood in de directe omgeving;
– Op korte afstand van een goede bus- en tram verbinding en autosnelwegen A20 en A4 om binnen 20 minuten uit te komen in Rotterdam, Delft of Hoek van Holland strand;
– Ouderdomsclausule is van toepassing i.v.m. de leeftijd van het complex;
– Oplevering circa 1e kwartaal 2026.

Overige
Huis kopen? Neem uw eigen NVM Aankoopmakelaar mee!
Download nu via www.dewittegarantiemakelaars.nl de brochure van deze woning.

Een daadwerkelijke koopovereenkomst komt pas tot stand nadat beide partijen de schriftelijke overeenkomst hebben ondertekend.

Toelichtingsclausule Meetinstructie
De Meetinstructie is gebaseerd op de NEN2580. De Meetinstructie is bedoeld om een meer eenduidige manier van meten toe te passen voor het geven van een indicatie van de gebruiksoppervlakte. De Meetinstructie sluit verschillen in meetuitkomsten niet volledig uit, door bijvoorbeeld interpretatieverschillen, afrondingen of beperkingen bij het uitvoeren van de meting.

Nadrukkelijk zij vermeld, dat deze vrijblijvende informatieverstrekking niet als een aanbieding of een offerte mag worden beschouwd. Aan deze gegevens kunnen geen rechten worden ontleend.

  • 85 m2
  • 2

Kenmerken Lepelaarsingel 142

Overdracht

Vraagprijs€ 275.000,- k.k.
AanvaardingIn overleg

Oppervlaktes en inhoud

Woonoppervlakte85 m2
Inhoud274 m3

Bouw

SoortGalerijflat
BouwvormBestaande bouw
Bouwjaar1964
Dak typePlat dak
IsolatievormenGrotendeels dubbelglas
EnergielabelC

Indeling

Aantal verdiepingen1
Aantal kamers3
Aantal slaapkamers2
Aantal badkamers1

Maandlasten

Ligging Lepelaarsingel 142

Voorzieningen

Centraal gelegen informatie over de buurt

Aantal inwoners

In de gemeente

71.999

Leeftijd

in percentages van totaal

Huishoudsamenstelling

in percentages van totaal

48%

20% NL

27%

20% NL

25%

20% NL

Vergelijkbaar woningaanbod