Ga naar inhoud

Te koop: appartement Philips de Goedestraat 68 3132 XS Vlaardingen

De Witte Garantiemakelaars Vlaardingen
Neem contact met mij op

Onder bod

€ 275.000,- k.k.

bied op deze woning

In West, omgeven door groen en singels, vindt u deze keurige 4-kamermaisonnette

De woning is bereikbaar met een lift en beschikt over een heerlijk zonnig balkon op het westen.

Deze maisonnette ligt op de derde en vierde woonlaag van een verzorgd complex met lift en maakt deel uit van een actieve Vereniging van Eigenaren. Het appartement is netjes onderhouden en kan daardoor snel worden betrokken. Het zonnige balkon aan de achterzijde biedt voldoende ruimte om, ook aan het einde van de dag, nog van de zon te genieten. Daarnaast beschikt de woning over een eigen berging in de onderbouw van het complex.

De ligging aan de rand van de geliefde Westwijk is ideaal: rustig, omgeven door groen en toch dichtbij alle voorzieningen. In de directe omgeving vindt u openbaar vervoer, winkelcentrum Vlaardingen West en recreatiegebied De Krabbenplas. Bovendien bent u binnen vijf fietsminuten in het centrum van Vlaardingen, waar u kunt genieten van gezellige terrassen, restaurants en winkels.

Onderstaand nemen wij u graag mee voor een schriftelijke rondleiding, maar uiteraard nodigen wij u ook van harte uit om de woning zelf te komen bekijken. Wacht niet te lang met het maken van een afspraak voor een persoonlijke bezichtiging met één van onze makelaars.
Begane grond
Via de afgesloten entree met brievenbussen en bellentableau bereikt u het goed onderhouden complex. Zowel met de lift als via het trappenhuis komt u bij de galerij, waar de woning is gelegen op de vierde en vijfde verdieping.

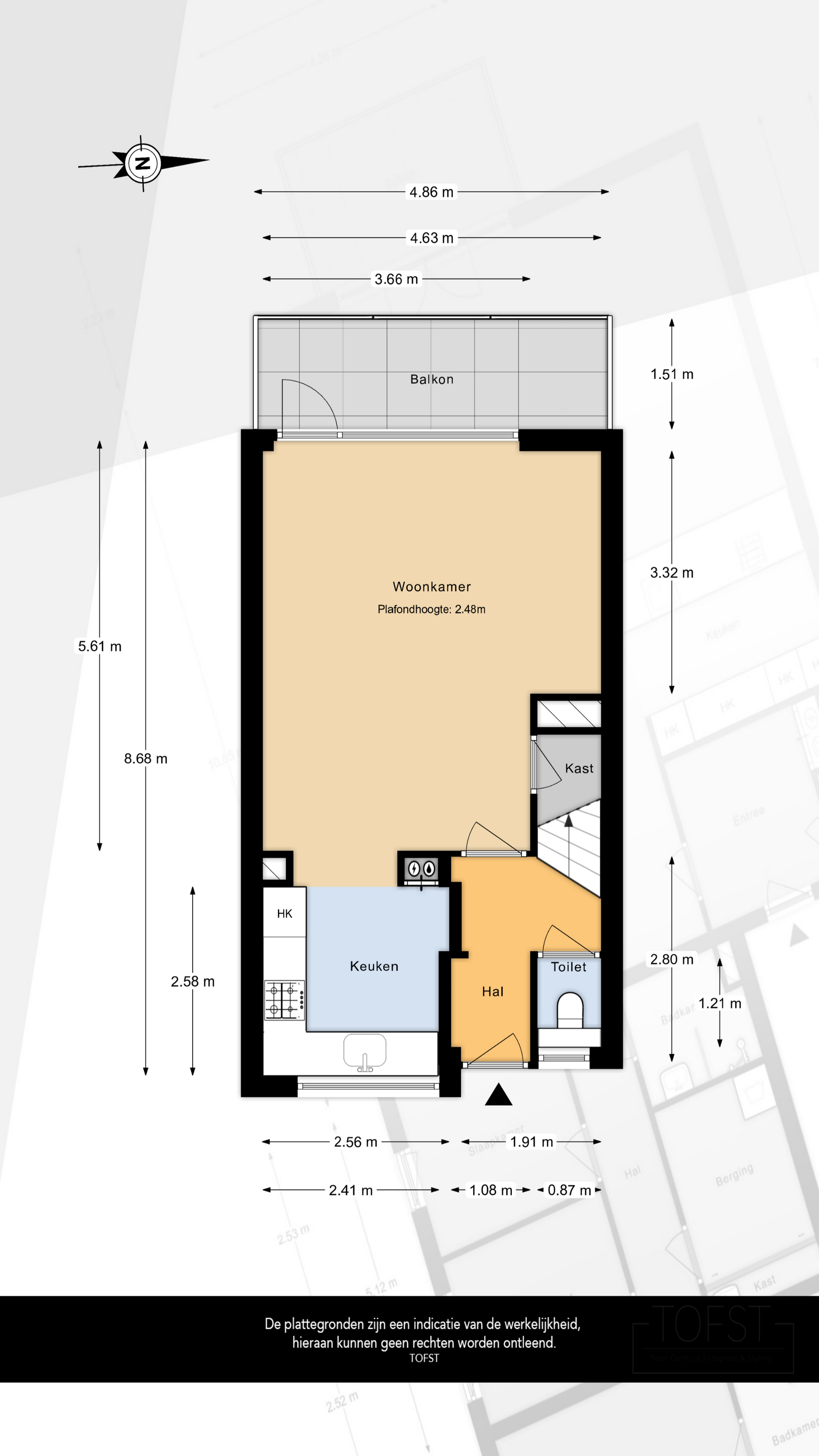
Derde verdieping
Entree van de woning met een ruime hal, vaste trap naar de slaapverdieping, een keurig toilet met hangend closet (gedeeltelijk betegeld in wit/antraciet), een raampje en een vaste trapkast.

Via een tussendeur bereikt u de lichte woonkamer van circa 24 m², voorzien van een moderne laminaatvloer en toegang tot het balkon van circa 7 m². Het balkon ligt heerlijk op het westen, zodat u hier de hele dag – en zeker in de middag en avond – van de zon kunt genieten met vrij uitzicht.

De keuken (circa 7 m²) is uitgevoerd in een nette antracietkleur met een houtlook werkblad. De keuken is voorzien van diverse inbouwapparatuur, waaronder een 4-pits gaskookplaat met afzuigkap, oven, vaatwasser, koel-vriescombinatie, geïntegreerde spoelbak, carrouselkast en voldoende kastruimte.

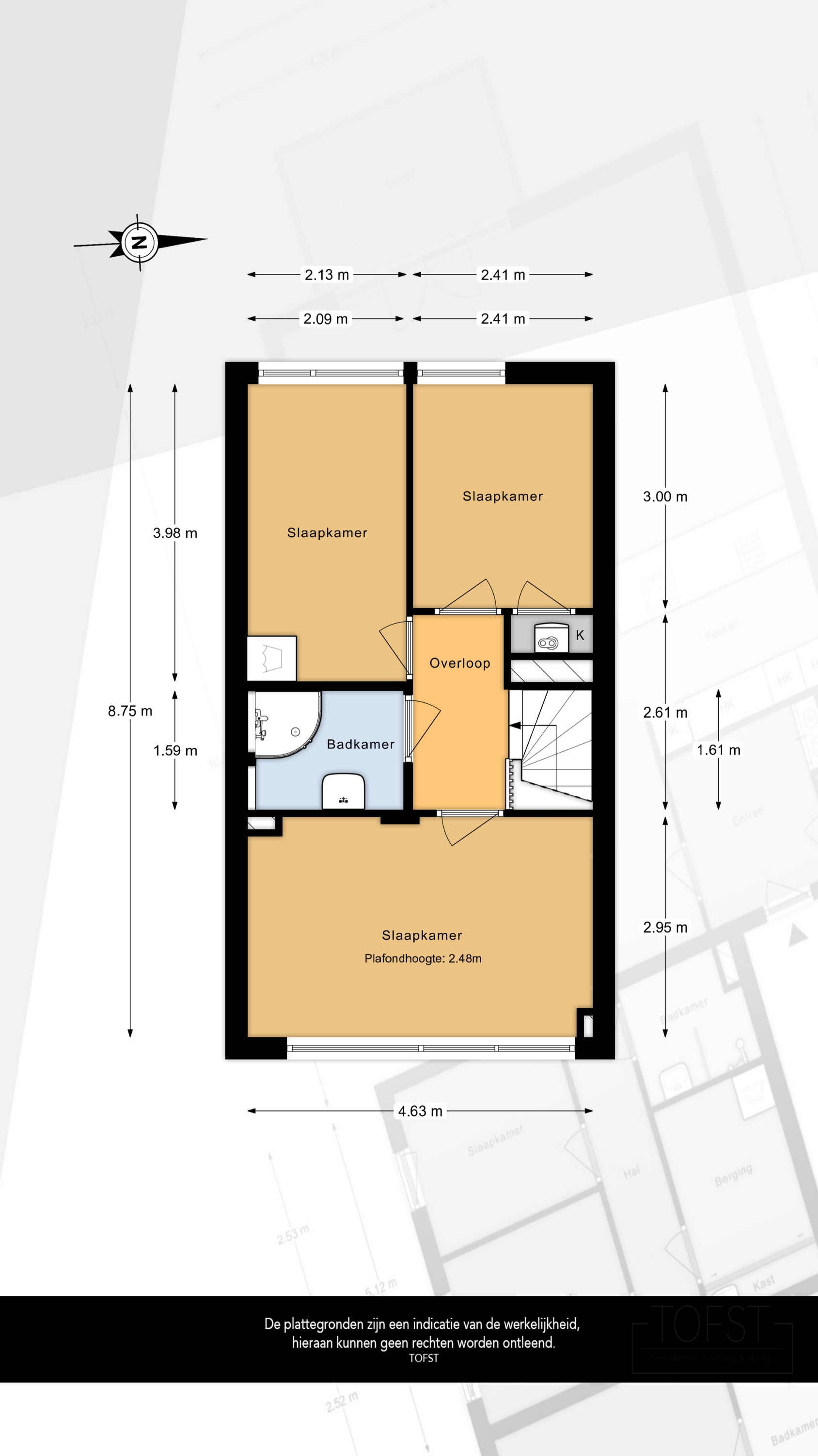
Vierde verdieping
Via de vaste trap bereikt u de slaapverdieping. Hier bevinden zich drie fijne slaapkamers en een keurige badkamer.
De hoofdslaapkamer aan de voorzijde heeft een oppervlakte van circa 13 m². De twee slaapkamers aan de achterzijde zijn respectievelijk circa 8,5 m² en 7 m² groot. Alle kamers zijn voorzien van een moderne laminaatvloer en dubbel glas.
In de middelste slaapkamer bevindt zich de aansluiting voor de wasmachine, terwijl in de kleinste kamer een vaste kast met de cv-combiketel aanwezig is.

De badkamer (circa 3 m²) is netjes afgewerkt en voorzien van een douchecabine, wastafelmeubel met spiegel en designradiator.

In de onderbouw beschikt u over een eigen berging van circa 6 m².
Bijzonderheden

Moderne 4-kamermaisonnette;

Woonoppervlakte ca. 80 m² (gemeten volgens de meetinstructie);

Ruime woonkamer met zonnig balkon op het westen;

Nette keuken met diverse inbouwapparatuur;

Drie fijne slaapkamers en een keurige badkamer;

Eigen berging in de onderbouw;

Bouwjaar 1958, goed onderhouden complex met actieve VvE (€ 213,– per maand);

Volledig voorzien van dubbele beglazing, centrale verwarming en energielabel C;

Gelegen op vaste, lage erfpachtgrond tot 30 juni 2057 (canon slechts € 55 per jaar);

Voldoende gratis parkeergelegenheid;

Centrale ligging nabij winkelcentrum Dr. Wiardi Beckmansingel met supermarkten en winkels;

Op loopafstand van natuur- en recreatiegebieden De Broekpolder en De Krabbenplas;

Nabij uitvalswegen A4 en A20 en openbaar vervoer (bus en metro);

De ouderdomsclausule en niet-zelfbewoningsclausule worden opgenomen in de koopovereenkomst;

Vaste notaris: Mr. J.W.F. van Gastel te Vlaardingen.

Overige
Huis kopen? Neem uw eigen NVM Aankoopmakelaar mee!
Download nu via www.dewittegarantiemakelaars.nl de brochure van deze woning.

Een daadwerkelijke koopovereenkomst komt pas tot stand nadat beide partijen de schriftelijke overeenkomst hebben ondertekend.

Toelichtingsclausule Meetinstructie
De Meetinstructie is gebaseerd op de NEN2580. De Meetinstructie is bedoeld om een meer eenduidige manier van meten toe te passen voor het geven van een indicatie van de gebruiksoppervlakte. De Meetinstructie sluit verschillen in meetuitkomsten niet volledig uit, door bijvoorbeeld interpretatieverschillen, afrondingen of beperkingen bij het uitvoeren van de meting.

Nadrukkelijk zij vermeld, dat deze vrijblijvende informatieverstrekking niet als een aanbieding of een offerte mag worden beschouwd. Aan deze gegevens kunnen geen rechten worden ontleend.

  • 80 m2
  • 3

Kenmerken Philips de Goedestraat 68

Overdracht

Vraagprijs€ 275.000,- k.k.
AanvaardingIn overleg

Oppervlaktes en inhoud

Woonoppervlakte80 m2
Inhoud264 m3

Bouw

SoortMaisonnette
BouwvormBestaande bouw
Bouwjaar1958
Dak typePlat dak
IsolatievormenDubbelglas
EnergielabelC

Indeling

Aantal verdiepingen2
Aantal kamers4
Aantal slaapkamers3
Aantal badkamers1

Maandlasten

Ligging Philips de Goedestraat 68

Voorzieningen

Centraal gelegen informatie over de buurt

Aantal inwoners

In de gemeente

71.999

Leeftijd

in percentages van totaal

Huishoudsamenstelling

in percentages van totaal

43%

20% NL

28%

20% NL

29%

20% NL

Vergelijkbaar woningaanbod