Ga naar inhoud

Te koop: woonhuis Samuel Esmeijerstraat 241 3132 AN Vlaardingen

De Witte Garantiemakelaars Vlaardingen
Neem contact met mij op

Verkocht o.v.

€ 429.500,- k.k.

bied op deze woning

Aan de rand van Vlaardingen West, in de directe omgeving van het openbaar vervoer en winkelcentrum dr. Wiardi Beckmansingel mogen wij een riante woning op eigen grond te koop aanbieden.

Deze fijne woning is gebouwd in 2001, voorzien van energielabel A en de afgelopen jaren door de verkopers goed onderhouden.
Op de begane grond beschikt de woning over een fijne tuingerichte woonkamer met een keurige U-vormige open keukenopstelling en een zonnige achtertuin op het zuidwesten. Op de verdiepingen zijn 3 slaapkamers, maar de mogelijkheid bestaat een vierde of zelfs vijfde slaapkamer te realiseren, een keurige badkamer en een riant dakterras aanwezig.

Door de centrale ligging zijn diverse scholen, het openbaar vervoer en winkelcentrum dr. Wiardi Beckmansingel op loopafstand aanwezig. Tevens bevindt u zich op vijf fietsminuten van Vlaardingen Centrum, waar u kunt genieten van heerlijke terrasjes en restaurantjes, alsmede in de nabijheid van de Krabbenplas en Broekpolder.

Al met al een heerlijke woning in een kindvriendelijke buurt. Onderstaand geven wij u een schriftelijke rondleiding door de woning, maar wij nodigen u graag uit de woning persoonlijk met één van onze makelaars te komen bekijken.

Indeling

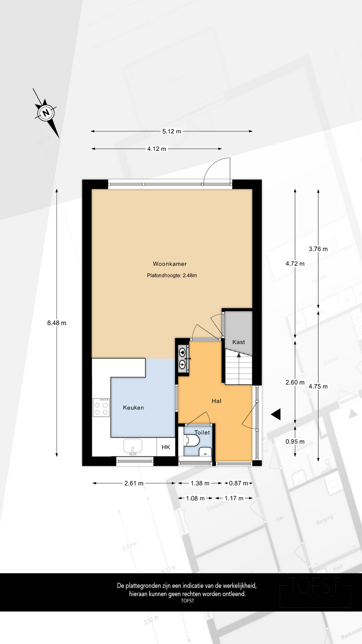
Begane grond
Nadat u uw auto op het voorgelegen terrein heeft geparkeerd komt u zeer speels aan de zijkant de woning binnen.
De ontvangsthal van de woning is voorzien van een toiletruimte met staand closet en fontein, meterkast, garderoberuimte, trap naar de verdiepingen en verstrekt u de toegang tot de verschillende ruimtes.

De lichte woonkamer is tuingericht en voorzien van een moderne plavuizen vloer met vloerverwarming, strakke wandafwerking, hard houten kozijnen met dubbel glas en vaste trapkast.

Middels de loopdeur wordt de toegang verstrekt tot de zonnige achtertuin op het zuidwesten, waardoor u de gehele dag kunt genieten van het zonnetje. De onderhoudsvriendelijke achtertuin is voorzien van een vrijstaande houten berging met elektra en een achterom.

De keurige U-vormige keukenopstelling is aan de voorzijde van de woning gelegen en voorzien van een inductie kookplaat met afzuigschouw, koelkast, vaatwasser (2024), oven en veel opbergruimte.

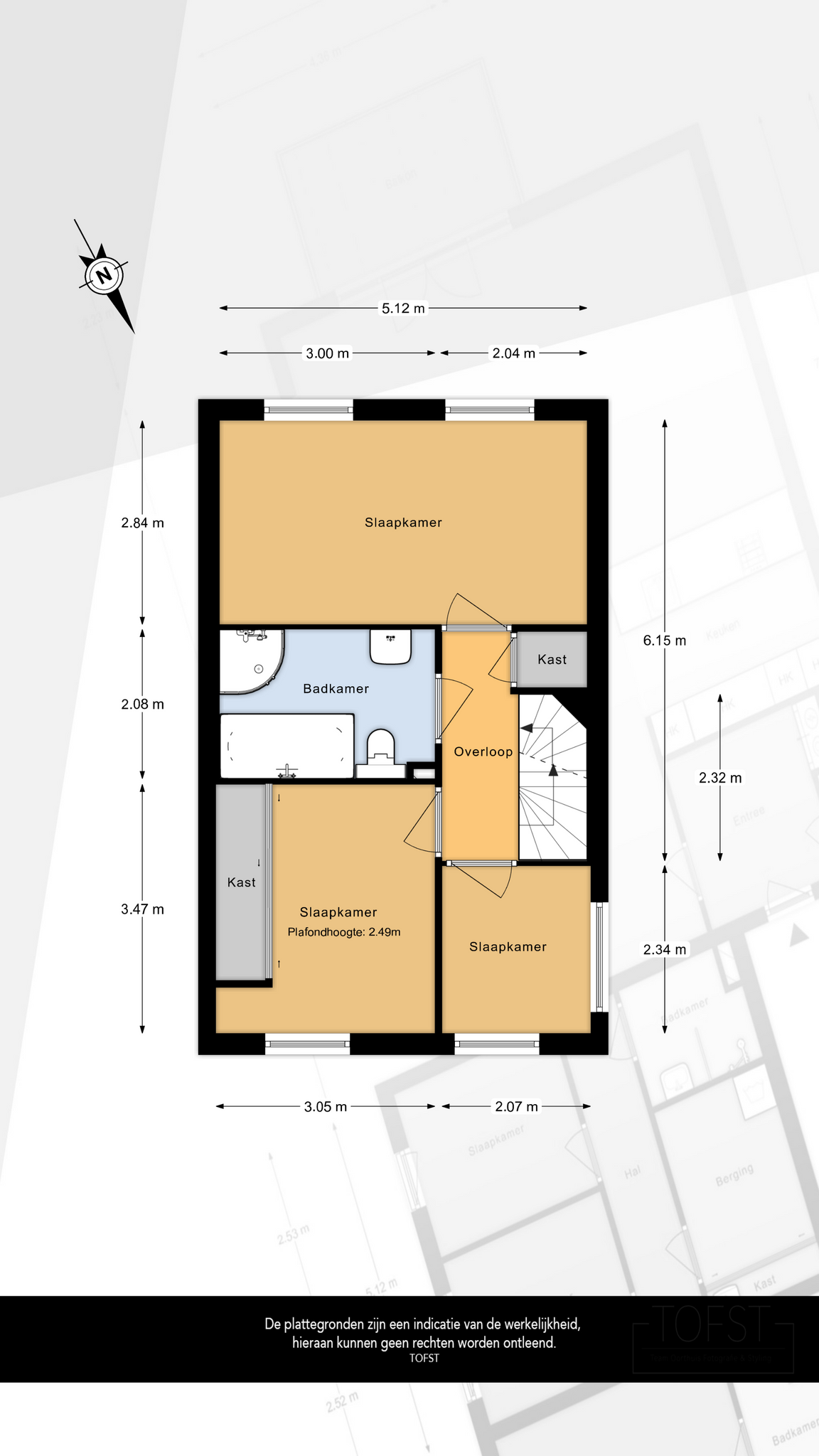
Eerste verdieping
Vanaf de overloop met een vaste kast wordt de toegang verstrekt tot de twee fijne slaapkamers en de moderne badkamer.

Slaapkamer 1 is aan de achterzijde van de woning gelegen en beschikt over een woonoppervlakte van ruim 14,5 m².
Slaapkamer 2 is aan de voorzijde van de woning gelegen en beschikt over een woonoppervlakte van 15 m².
Alle twee de slaapkamers zijn voorzien van een moderne laminaatvloer, strakke wandafwerking en hard houten kozijnen met dubbel glas. Indien wenselijk kan de slaapkamer aan de voorzijde gesplitst worden in twee losse slaapkamers, dit is ingetekend in de plattegrondtekening.

De keurige badkamer is geheel betegelden voorzien van een douchehoek, ligbad met whirepoolfunctie, tweede hangend closet en een riant wastafelmeubel.

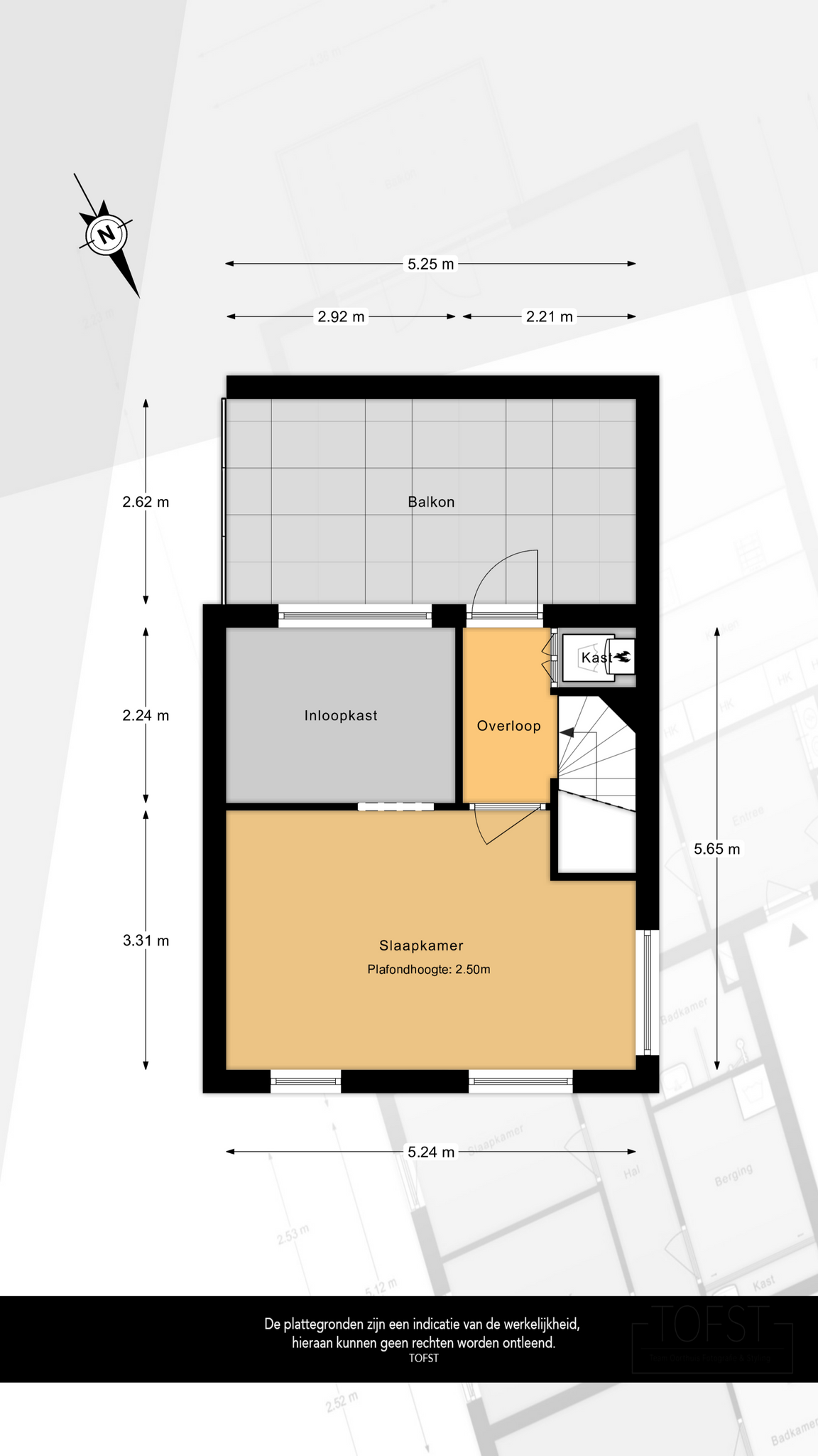
Tweede verdieping
De topverdieping is door de huidige eigenaren fraai ingericht met een riante hoofdslaapkamer met inloopkast. Deze ruimte is afgewerkt met een strakke wand- en vloerafwerking en houten kozijnen met dubbel glas.
Door de riante ruimte kan de inloopkast ook gebruikt worden als slaapkamers, zoals is ingetekend in de plattegrondtekening.
In de vaste kast zijn de cv ketel en mechanische ventilatiebox opgesteld en middels een loopdeur wordt de toegang verstrekt tot het riante dakterras welke eveneens op het zuidwesten is gelegen.

Bijzonderheden:
– Instapklare hoekgelegen eengezinswoning;
– Kindvriendelijke wijk en vrij uitzicht;
– Zonnige achtertuin op het zuidwesten;
– Woonoppervlakte circa 116 m² (gemeten conform meetinstructie);
– Bouwjaar 2001 en zeer goed onderhouden;
– Volledig geïsoleerd, beschikt over energielabel A;
– Gelegen op eigen grond;
– Oplevering in overleg;
– Cv-ketel van het merk Nefit uit 2016;
– Diverse scholen, supermarkten, winkelcentrum dr. Wiardi Beckmansingel en openbaar vervoer als bus en metroverbinding richting Rotterdam of de Hoekse Lijn om op Hoek van Holland strand uit te komen zijn op loopafstand aanwezig.
– Binnen enkele minuten van uitvalswegen als de A4 en de A20.
– Tevens bevindt u zich op 5 minuten fietsen van het centrum van Vlaardingen met diverse winkelvoorzieningen, sportscholen, theater, casino, bioscoop en verschillende horecagelegenheden.
– in nabijheid van Krabbenplas en Broekpolder.

Overige
Huis kopen? Neem uw eigen NVM Aankoopmakelaar mee!
Download nu via www.dewittegarantiemakelaars.nl de brochure van deze woning.

Een daadwerkelijke koopovereenkomst komt pas tot stand nadat beide partijen de schriftelijke overeenkomst hebben ondertekend.

Toelichtingsclausule NEN2580
De Meetinstructie is gebaseerd op de NEN2580. De Meetinstructie is bedoeld om een meer eenduidige manier van meten toe te passen voor het geven van een indicatie van de gebruiksoppervlakte. De Meetinstructie sluit verschillen in meetuitkomsten niet volledig uit, door bijvoorbeeld interpretatieverschillen, afrondingen of beperkingen bij het uitvoeren van de meting.

Nadrukkelijk zij vermeld, dat deze vrijblijvende informatieverstrekking niet als een aanbieding of een offerte mag worden beschouwd. Aan deze gegevens kunnen geen rechten worden ontleend.

  • 116 m2
  • 124 m2
  • 4

Kenmerken Samuel Esmeijerstraat 241

Overdracht

Vraagprijs€ 429.500,- k.k.
AanvaardingIn overleg

Oppervlaktes en inhoud

Perceel oppervlakte124 m2
Woonoppervlakte116 m2
Inhoud408 m3

Bouw

SoortEengezinswoning
BouwvormBestaande bouw
Bouwjaar2001
Dak typePlat dak
IsolatievormenDakisolatie, Muurisolatie, Vloerisolatie, Dubbelglas, Volledig geïsoleerd
EnergielabelA

Indeling

Aantal verdiepingen3
Aantal kamers5
Aantal slaapkamers4
Aantal badkamers1

Maandlasten

Ligging Samuel Esmeijerstraat 241

Voorzieningen

Centraal gelegen informatie over de buurt

Aantal inwoners

In de gemeente

71.999

Leeftijd

in percentages van totaal

Huishoudsamenstelling

in percentages van totaal

43%

20% NL

20%

20% NL

37%

20% NL

Vergelijkbaar woningaanbod