Ga naar inhoud

Te koop: woonhuis Schiedamseweg 21 3134 BA Vlaardingen

Beschikbaar

Bezichtiging plannen

€ 439.500,- k.k.

bied op deze woning

Bent u op zoek naar een totaal gerenoveerde woning met verschillende mogelijkheden en een speelse indeling? Dan is dit misschien wel de kans! Wij mogen dit karakteristieke pand met dubbele bestemming te koop aanbieden!

Of u nu op zoek bent naar een ruime eengezinswoning met drie slaapkamers, twee badkamers en een heerlijk dakterras of mogelijkheden zoekt voor werken aan huis. Het kan allemaal bij deze tussenwoning. Tel daarbij op dat de woning helemaal is vernieuwd en geïsoleerd waardoor de woning beschikt over energielabel A.

Op de begane grond vindt u een ruime entreehal met aansluitend een zeer ruime (slaap)kamer. Deze kamer kan prima als slaapkamer dienen met aangrenzend een eigen luxe badkamer maar ook als werkruimte. Op de verdiepingen bevinden zich een heerlijk ruime en lichte woonkamer met openslaande deuren naar het dakterras, de keuken, twee slaapkamers en een tweede badkamer! Naast de entree zit nog een deur met toegang tot de steeg, ideaal voor het plaatsen van bijvoorbeeld fietsen en opslag.

Door de centrale ligging in het centrum van Vlaardingen is alles binnen handbereik. Divers winkelaanbod, gezellige cafeetjes, openbaar vervoersmogelijkheden maar ook overige voorzieningen, waaronder zwembad De Kulk, Vue bioscoop Vlaardingen en het theater de Stadsgehoorzaal.

Onderstaand geven wij u een schriftelijke rondleiding door dit unieke pand, maar wij begrijpen dat u zo een pareltje als deze graag met eigen ogen zou willen bekijken. Wacht in dat geval niet te lang met het inplannen van een bezichtigingsafspraak voor een persoonlijke bezichtiging met één van onze makelaars.

Indeling

Begane grond:
Via de voordeur komt u in de ruime entreehal van de woning die de toegang biedt naar de eerste (slaap) kamer en de trap naar de eerste etage. Deze grote kamer is ideaal voor bijvoorbeeld de kinderen die een eigen plek willen met aangrenzend een eigen badkamer. De badkamer heeft een zeer luxe uitstraling met mooi licht tegelwerk en beschikt over een ligbad, inloopdouche, wastafelmeubel, toilet en elektrische handdoekenradiator. Door de dubbel bestemming kan er beneden ook een werkruimte aan huis worden gevestigd.
Deze gehele etage beschikt over een fraaie pvc vloer en strakke wandafwerking met hoge zwarte plinten.

Eerste etage:
Via de overloop is er toegang tot het toilet wat volledig is betegeld en voorzien is van een wandcloset, de keuken en de woonkamer. De ruime woonkamer beschikt over een fijne lichtinval en heeft eveneens een strakke wandwerking en fraaie pvc vloer met hoge zwarte plinten. Via de openslaande deuren aan de achterzijde is er toegang tot het dakterras van circa 14 m². Hier kan je een heerlijk plekje maken voor de warme dagen! De dichte keuken is gelegen aan de achterzijde en biedt eveneens toegang tot het dakterras. De keuken heeft een recht opstelling in donkergrijze kleurstelling en beschikt over een koelkast, oven, vaatwasser en een inductie kookplaat met afzuigkap.

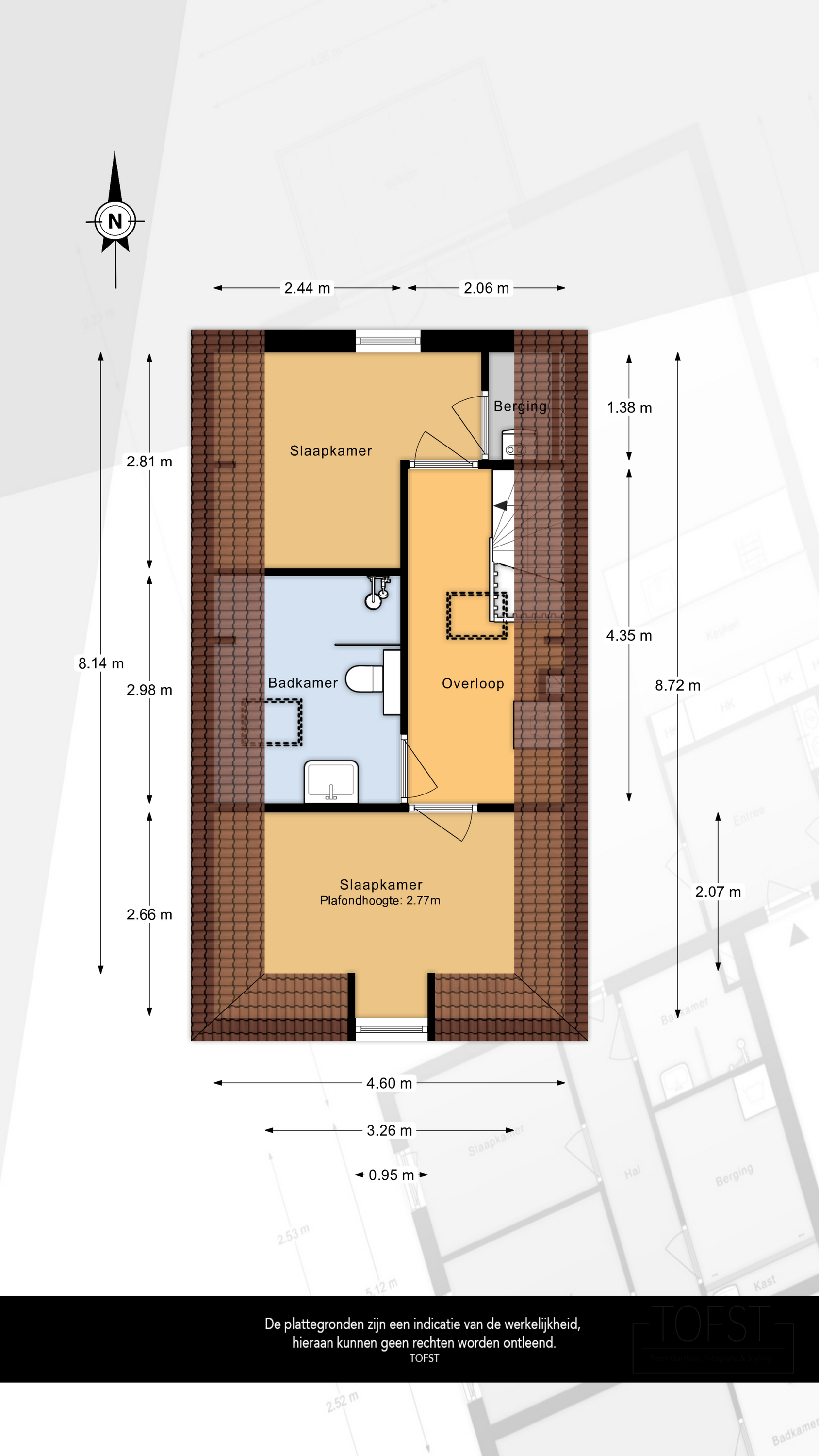
Tweede etage:
Via de overloop met nieuw geplaatst dakraam bereiken we de twee slaapkamers en de tweede moderne badkamer. Ook deze etage is geheel voorzien van een pvc vloer en strakke wanden met hoge plintafwerking. De eerste slaapkamer ligt aan de voorzijde en is circa 12 m². De slaapkamer aan de achterzijde is 8 m² groot en biedt toegang tot een kast met daarin de opstelling van de CV ketel. Ook deze tweede badkamer heeft een luxe uitstraling en beschikt over een inloopdouche, wastafelmeubel en een toilet. De badkamer is voorzien van een nieuw geplaatst dakraam. Op de overloop van deze etage bevindt zich de aansluiting voor de wasmachine.

Bijzonderheden:
– Woonoppervlakte 118 m² (conform meetinstructie)
– Volledig gerenoveerd, instapklaar;
– Nieuwe keuken, badkamers en toiletten;
– Energielabel A;
– Gelegen op eigen grond;
– Gelegen in het centrum, nabij winkels, horeca, scholen, zwembad, bioscoop en metrostation Vlaardingen Centrum. Uitvalswegen (A4, A20) zijn snel bereikbaar;
– De woning wordt verkocht in combinatie met de ouderdomsclausule en niet bewoningsclausule;
– Dubbele bestemming; wonen met functieaanduiding dienstverlening;
– Oplevering zo snel mogelijk.

Overige
Huis kopen? Neem uw eigen NVM Aankoopmakelaar mee!
Download nu via www.dewittegarantiemakelaars.nl de brochure van deze woning.

Een daadwerkelijke koopovereenkomst komt pas tot stand nadat beide partijen de schriftelijke overeenkomst hebben ondertekend.

Toelichtingsclausule Meetinstructie
De Meetinstructie is gebaseerd op de NEN2580. De Meetinstructie is bedoeld om een meer eenduidige manier van meten toe te passen voor het geven van een indicatie van de gebruiksoppervlakte. De Meetinstructie sluit verschillen in meetuitkomsten niet volledig uit, door bijvoorbeeld interpretatieverschillen, afrondingen of beperkingen bij het uitvoeren van de meting.

Nadrukkelijk zij vermeld, dat deze vrijblijvende informatieverstrekking niet als een aanbieding of een offerte mag worden beschouwd. Aan deze gegevens kunnen geen rechten worden ontleend.

  • 118 m2
  • 71 m2
  • 3

Kenmerken Schiedamseweg 21

Overdracht

Vraagprijs€ 439.500,- k.k.
AanvaardingIn overleg

Oppervlaktes en inhoud

Perceel oppervlakte71 m2
Woonoppervlakte118 m2
Inhoud428 m3

Bouw

SoortEengezinswoning
BouwvormBestaande bouw
Bouwjaar1916
Dak typeSchilddak
IsolatievormenDakisolatie, Muurisolatie, Dubbelglas
EnergielabelA

Indeling

Aantal verdiepingen3
Aantal kamers4
Aantal slaapkamers3
Aantal badkamers2

Maandlasten

Ligging Schiedamseweg 21

Voorzieningen

Centraal gelegen informatie over de buurt

Aantal inwoners

In de gemeente

71.999

Leeftijd

in percentages van totaal

Huishoudsamenstelling

in percentages van totaal

44%

20% NL

24%

20% NL

32%

20% NL

Vergelijkbaar woningaanbod