€ 515.000,- k.k.
bied op deze woningErvaar het gemak van comfortabel en energiezuinig wonen in de jonge, recent opgeleverde woonwijk Park Harga.
Dit ruime 3-kamer appartement op de derde verdieping biedt alles wat u zoekt: een hoogwaardig afwerkingsniveau, een heerlijk lichte woonkamer, stijlvolle keuken met kook-/spoeleiland, een royaal balkon met vrij uitzicht en ook nog eens geheel voorzien van vloerverwarming en – koeling.
Dit appartement is gebouwd in 2022 en maakt deel uit van een kleinschalig en goed onderhouden complex met slechts 12 appartementen. Dankzij het energielabel A+++ geniet u van een uiterst duurzaam en energiezuinig thuis met lage maandlasten. In de onderbouw beschikt u over een eigen berging, ideaal voor fietsen en extra opslag.
De ligging is perfect: rustig aan een singel met veel groen, maar met alle voorzieningen dichtbij. De metro, tram en bus brengen u in slechts 15 minuten naar het centrum van Rotterdam of het strand van Hoek van Holland. Ook de A4 en A20 liggen binnen handbereik, waardoor steden als Delft en Den Haag snel te bereiken zijn.
Onderstaand geven wij u een schriftelijke rondleiding, maar wij begrijpen dat u deze woning graag met eigen ogen wilt bekijken. Wacht in dat geval niet te lang met het inplannen van een bezichtigingsafspraak met één van onze makelaars.
Indeling:
Begane grond
Parkeren doet u op het voorgelegen openbare parkeerterrein waarna u snel de entree van het appartementencomplex bereikt. Hier komt u via de lift of op de derde verdieping. 
Derde verdieping
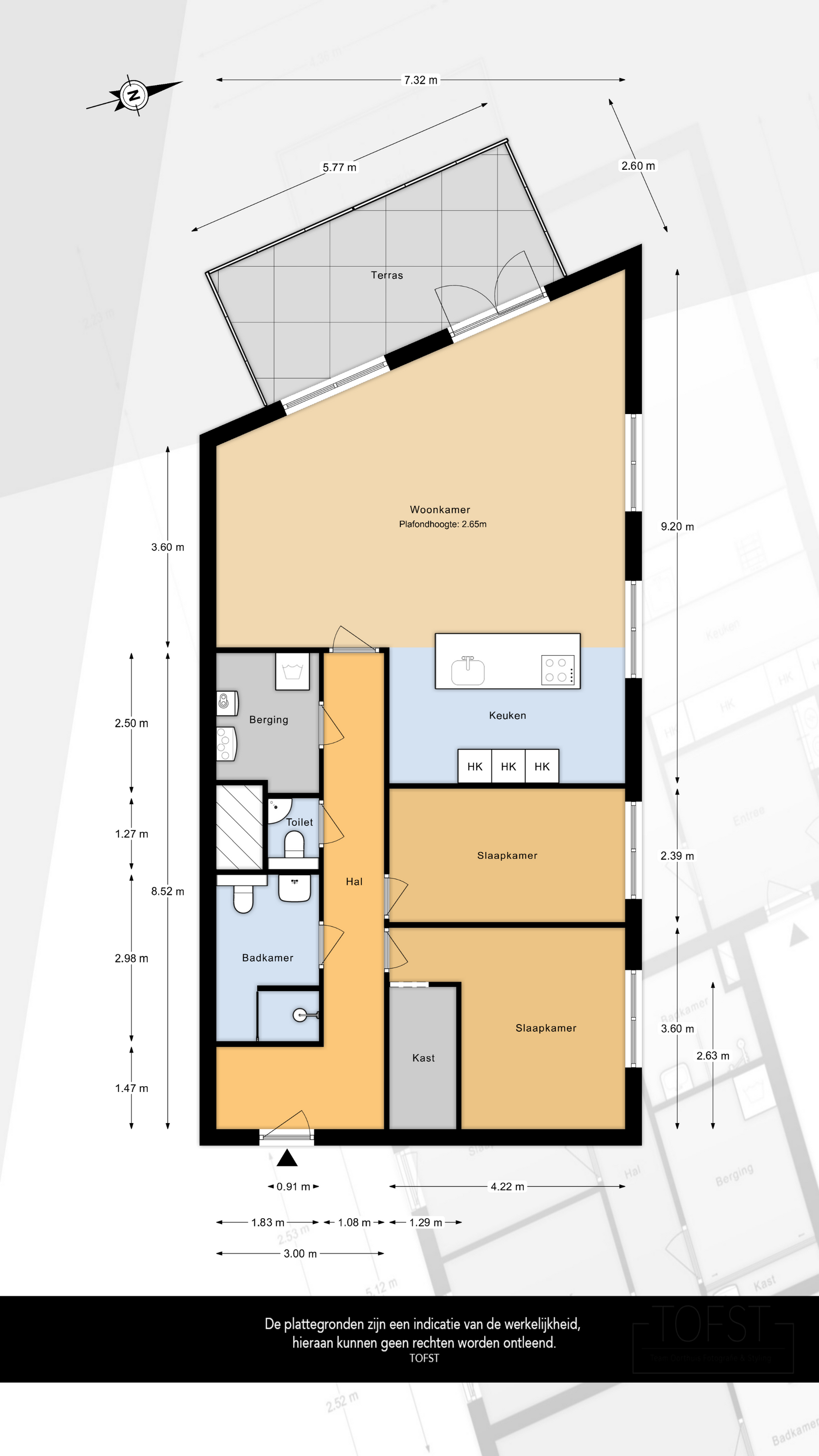
Bij binnenkomst via de inpandige entree komt u uit in de ruime hal met garderoberuimte, meterkast, modern toilet, inpandige berging en toegang tot alle overige vertrekken.
De woonkamer van circa 38 m² is heerlijk licht door de vele ramen en biedt een prettig uitzicht over de omgeving. De ruimte is afgewerkt met een fraaie pvc-vloer en voorzien van vloerverwarming/-koeling. Via de woonkamer is er middels openslaande deuren toegang tot het ruime balkon met elektrische zonwering. Het balkon is gelegen op het westen, met volop middag- en avondzon.
De moderne open keuken in houtlook met kook-/spoeleiland beschikt over een fraai marmerlook werkblad en alle hedendaagse inbouwapparatuur, waaronder een bora inductiekookplaat met ingebouwde afzuiging, koel-vriescombinatie, vaatwasser, combi-oven en quooker. Verder zijn er voldoende laden en kasten voor bergruimte.
De badkamer is modern uitgevoerd met een ruime inloopdouche, tweede hangend toilet en een wastafelmeubel met spiegel. De afwerking is tijdloos in grijs-witte tinten, volledig betegeld en voorzien van mechanische ventilatie.
De twee slaapkamers zijn 15 en 10 m² groot en beschikken over dezelfde pvc-vloer en klimaatregeling.
De grootste slaapkamer beschikt over een ideale inloopkast. 
De inpandige berging is voorzien van de opstelling voor de bodemwarmtepomp, elektrische boiler, WTW-installatie, aansluiting voor wasmachine/wasdroger en voldoende bergruimte.
In de onderbouw bevindt zich een aparte berging van circa 5 m².
Bijzonderheden
– Luxe appartement op de derde verdieping in een kleinschalig complex;
– Met lift en gelegen op eigen grond;
– Woonoppervlakte 100 m² (gemeten conform de meetinstructie);
– Fraaie woonkamer circa 38 m² op een hoek met meerdere raampartijen;
– Twee goede slaapkamers en een ruime badkamer;
– Bergingbox in de onderbouw;
– Gebouwd in 2022, energielabel A+++ en volledig voorzien van vloerverwarming met koeling;
– Actieve VVE in kleinschalig complex met een maandelijkse bijdrage van € 225,-;
– Gelegen aan e rand van de nieuwbouw woonwijk Park Harga;
– Nabij openbaar vervoer als metro, tram, bus en uitvalswegen als de A4 en de A20 voor Rotterdam, Delft en Den Haag;
– Oplevering in overleg;
Overige
Huis kopen? Neem uw eigen NVM Aankoopmakelaar mee!
Download nu via www.dewittegarantiemakelaars.nl de brochure van deze woning.
Een daadwerkelijke koopovereenkomst komt pas tot stand nadat beide partijen de schriftelijke overeenkomst hebben ondertekend.
Toelichtingsclausule Meetinstructie
De Meetinstructie is gebaseerd op de NEN2580. De Meetinstructie is bedoeld om een meer eenduidige manier van meten toe te passen voor het geven van een indicatie van de gebruiksoppervlakte. De Meetinstructie sluit verschillen in meetuitkomsten niet volledig uit, door bijvoorbeeld interpretatieverschillen, afrondingen of beperkingen bij het uitvoeren van de meting.
Nadrukkelijk zij vermeld, dat deze vrijblijvende informatieverstrekking niet als een aanbieding of een offerte mag worden beschouwd. Aan deze gegevens kunnen geen rechten worden ontleend.
- 100 m2
- 2
Kenmerken Ireen Wüststraat 145
Overdracht
| Vraagprijs | € 515.000,- k.k. | 
|---|---|
| Aanvaarding | In overleg | 
Oppervlaktes en inhoud
| Woonoppervlakte | 100 m2 | 
|---|---|
| Inhoud | 325 m3 | 
Bouw
| Soort | Portiekflat | 
|---|---|
| Bouwvorm | Bestaande bouw | 
| Bouwjaar | 2022 | 
| Dak type | Plat dak | 
| Isolatievormen | Dakisolatie, Muurisolatie, Vloerisolatie, Volledig geïsoleerd | 
| Energielabel | A+++ | 
Indeling
| Aantal verdiepingen | 1 | 
|---|---|
| Aantal kamers | 3 | 
| Aantal slaapkamers | 2 | 
| Aantal badkamers | 1 | 
Maandlasten
Ligging Ireen Wüststraat 145
Voorzieningen
Centraal gelegen informatie over de buurt
Aantal inwoners
In de gemeente
77.838
Leeftijd
in percentages van totaal
Huishoudsamenstelling
in percentages van totaal
33%
20% NL
25%
20% NL
42%
20% NL
 
                             
                             
                             
                             
                             
                             
                             
                             
                             
                             
                             
                             
                             
                             
                             
                             
                             
                             
                             
                             
                             
                             
                             
                             
                             
                             
                             
                             
                             
                             
                             
                             
                             
                             
                             
                             
                             
                                 
                                 
             
             
             
             
            