Ga naar inhoud

Te koop: appartement Boerhaavestraat 451 3132 RD Vlaardingen

De Witte Garantiemakelaars Vlaardingen
Neem contact met mij op

Verkocht

€ 259.000,- k.k.

bied op deze woning

Wie op zoek is naar een ruim opgezet, goed onderhouden appartement met een waanzinnig uitzicht nodigen wij graag uit voor een bezichtiging.

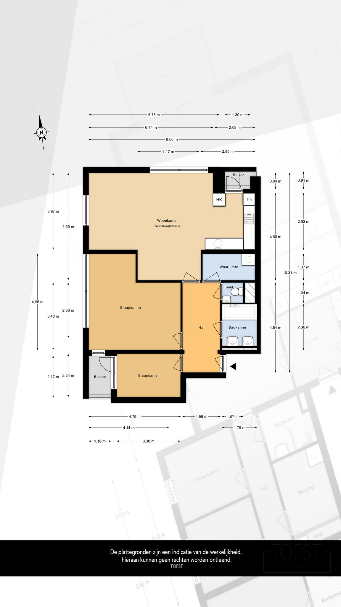
Dit fijne drie-kamer appartement is gelegen op de achtste verdieping van een goed onderhouden appartementencomplex met lift en een actieve vereniging van eigenaren. De woning is voorzien van een lichte woonkamer met open keukenopstelling, twee ruime slaapkamers met de mogelijkheid tot het creëren van een derde slaapkamer, geheel betegelde badkamer met separate toiletruimte en tweemaal een balkon.

Het appartement wordt verwarmd middels blokverwarming, is volledig voorzien van kunststof kozijnen met dubbel glas én beschikt over een parkeerplaats op eigen terrein.

Door de centrale ligging van het appartementencomplex is de metro richting Rotterdam en Hoek van Holland om de hoek gelegen. Ook het winkelcentrum aan de Dr. Wiardi Beckmansingel is op loopafstand gelegen en wanneer u gebruik wenst te maken van diverse restaurantjes en cafeetjes is het centrum van Vlaardingen op slechts vijf fietsminuten afstand gelegen.

Onderstaand geven wij u een schriftelijke rondleiding, maar wij nodigen u graag uit voor een persoonlijke bezichtiging. Wacht niet te lang voor het maken van een bezichtigingsafspraak met één van onze makelaars.

Indeling:

Begane grond
Nadat u uw auto op het afgesloten parkeerterrein heeft geparkeerd, of uw fiets in uw eigen berging heeft gestald, heeft u toegang tot de algemene afgesloten entree voorzien van bellentableau, brievenbussen, toegang tot het trappenhuis en de lift.

Achtste verdieping
Vanaf de afgesloten portiek, waardoor u altijd droog bij uw voordeur aankomt, komt u uit in de centrale hal van het appartement welke de toegang verstrekt tot de diverse vertrekken.

De lichte woonkamer is aan de achterkant van het appartement gelegen en heeft een oppervlakte van maar liefst 32 m². Deze fijne ruimte is voorzien van een moderne vloerafwerking met bijbehorende plintafwerking, kunststof kozijnen met dubbel glas, een adembenemend uitzicht over alle natuur die Vlaardingen te bieden heeft.

De open keukenopstelling is grenzend aan de woonkamer gelegen en voorzien van een vier pits gaskookplaat met recirculatiekap, vaatwasser, oven en veel kastruimte.

Beide slaapkamers zijn aan de achterzijde van de woning gelegen en beschikken over een respectievelijk oppervlakte van ruim 20 m² en ruim 7,5 m².
De mogelijkheid bestaat tot het splitsen van de eerste slaapkamer, om een derde slaapkamer te creëren en middels de tweede slaapkamer wordt de toegang verstrekt tot het tweede balkon.
Beide slaapkamers zijn eveneens voorzien van een keurige wand- en vloerafwerking en kozijnen met dubbel glas.

De keurige badkamer is geheel betegeld en voorzien van een ligbad met douche, dubbel wastafelmeubel en inbouwspots. De toiletruimte is separaat, deels betegeld en voorzien van een staand closet en fontein.

Vanaf de overloop is tot slot de inpandige berging bereikbaar. Deze ruimte beschikt over zowel de aansluitingen voor de wasmachine als de droger en de elektrische boiler is hier opgesteld.

Bijzonderheden:
– Heerlijk 3-kamerappartement met lift gelegen op de achtste verdieping;
– Woonoppervlakte 87 m² (gemeten conform meetinstructie);
– Verwarming middel blokverwarming;
– Energielabel C;
– Gelegen op tijdelijke erfpacht tot 31 augustus 2064 met een jaarlijkse canon van € 58,83;
– Actieve Vereniging van Eigenaren met een bijdrage van € 173,91 per maand + € 25,- per maand bijdrage voor verduurzaming van het complex;
– Maandelijkse bijdrage voorschot stookkosten €103,- per maand;
– Twee maal een balkon;
– Eigen berging box, privé parkeerterrein voor uw auto en een gezamenlijke fietsenstalling;
– Voldoende gratis parkeergelegenheid op naastgelegen parkeerterrein;
– Op korte afstand van winkelcentrum Dr. Wiardi Beckmansingel met verschillende supermarkten en divers winkelaanbod;
– Binnen enkele minuten op snelwegen als de A4 en de A20;
– Nabij openbaar vervoer als bus en metrostation Vlaardingen West;
– De woning wordt verkocht in combinatie met de ouderdomsclausule;
– Voor een heerlijke wandeling bent u in korte tijd bij de Surfplas en natuurgebied de Broekpolder.

Overige
Huis kopen? Neem uw eigen NVM Aankoopmakelaar mee!
Download nu via www.dewittegarantiemakelaars.nl de brochure van deze woning.

Een daadwerkelijke koopovereenkomst komt pas tot stand nadat beide partijen de schriftelijke overeenkomst hebben ondertekend.

Toelichtingsclausule Meetinstructie
De Meetinstructie is gebaseerd op de NEN2580. De Meetinstructie is bedoeld om een meer eenduidige manier van meten toe te passen voor het geven van een indicatie van de gebruiksoppervlakte. De Meetinstructie sluit verschillen in meetuitkomsten niet volledig uit, door bijvoorbeeld interpretatieverschillen, afrondingen of beperkingen bij het uitvoeren van de meting.

Nadrukkelijk zij vermeld, dat deze vrijblijvende informatieverstrekking niet als een aanbieding of een offerte mag worden beschouwd. Aan deze gegevens kunnen geen rechten worden ontleend.

  • 87 m2
  • 2

Kenmerken Boerhaavestraat 451

Overdracht

Vraagprijs€ 259.000,- k.k.
AanvaardingIn overleg

Oppervlaktes en inhoud

Woonoppervlakte87 m2
Inhoud275 m3

Bouw

SoortPortiekflat
BouwvormBestaande bouw
Bouwjaar1968
Dak typePlat dak
IsolatievormenDubbelglas
EnergielabelC

Indeling

Aantal verdiepingen1
Aantal kamers3
Aantal slaapkamers2
Aantal badkamers1

Maandlasten

Ligging Boerhaavestraat 451

Voorzieningen

Centraal gelegen informatie over de buurt

Aantal inwoners

In de gemeente

71.999

Leeftijd

in percentages van totaal

Huishoudsamenstelling

in percentages van totaal

42%

20% NL

25%

20% NL

33%

20% NL

Vergelijkbaar woningaanbod