Ga naar inhoud

Te koop: woonhuis Eendrachtstraat 40 3134 GL Vlaardingen

De Witte Garantiemakelaars Vlaardingen
Neem contact met mij op

Verkocht

€ 325.000,- k.k.

bied op deze woning

Leuke & karakteristieke 5-kamer eengezinswoning met zonnige stadstuin en dakterras, 4 slaapkamers moderne badkamer, gelegen op eigen grond in een rustige straat in de geliefde Oostwijk nabij alle voorzieningen.

U komt binnen via de keurige ontvangsthal in de 35 m² ruime en sfeervolle woonkamer met open keuken voorzien van alle hedendaagse keukenapparatuur. De aangrenzende stadstuin is onderhoudsarm aangelegd met een terras en een poort.

Aan de achterzijde vindt u slaapkamer 1 met de moderne badkamer. Op de slaapetage vindt u nog 3 goede slaapkamers met en een heerlijk zonnig dakterras.

Deze leuke woning is gebouwd in 1900, is goed onderhouden, keurig afgewerkt, volledig voorzien van centrale verwarming en nagenoeg volledig dubbele beglazing.

Wanneer u de deur uitloopt kunt u flaneren langs de sfeervolle Oude Haven. De ligging is praktisch ten opzichte van het stadshart, openbaar vervoer als bus en metro en uitvalswegen als de A4, A13 en A20 waardoor de grote steden in de omgeving makkelijk bereikbaar zijn. Goede scholen, winkels en openbaar vervoer zijn allemaal op loopafstand te vinden.

Bent u op zoek naar een leuke en aantrekkelijke eengezinswoning op loopafstand van het centrum van Vlaardingen? Maak dan nu een afspraak voor een bezichtiging!

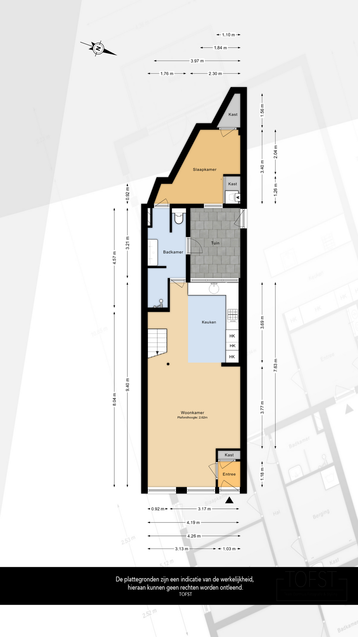
Indeling:

Begane grond
Entree, gang/hal met garderoberuimte.

Ruime woonkamer circa 22 m² voorzien van houten laminaat vloer, een open trap naar 1e verdieping en toegang tot de open keuken.
Ruime open keuken met eetgedeelte circa 13 m² met alle hedendaagse keukenapparatuur als een gas kookplaat met afzuigschouw, koel-vriescombinatie, vaatwasser en spoelbak.

Stadstuin circa 7 m², onderhoudsarm met veel privacy, terras en een poort om aan de voorzijde uit te komen.

Slaapkamer 1 achterzijde circa 7 m² met vaste kast voorzien van opstelling cv-combiketel, wasmachine en vaste bergkast.
Moderne badkamer circa 6,5 m² voorzien van inloopdouche met stortdouche en easy drain regengoot, wastafelmeubel met dubbele kraan en spiegel, hangend toilet, design radiator en betegeld in grijs/witte kleurstelling tot het stucwerk plafond met indirecte verlichting.

Eerste verdieping
Overloop.

Slaapkamer 2 voorzijde circa 6 m² met dakkapel en hout look laminaatvloer.
Slaapkamer 3 voorzijde circa 8 m² met dakkapel en hout look laminaatvloer.
Slaapkamer achterzijde circa 9 m² met dakkapel, hout look laminaatvloer, wastafelmeubel en deur naar dakterras.

Dakterras op het zonnige westen circa 10 m².

Bijzonderheden
– Leuke 5-kamer eengezinswoning;
– 85 m² woonoppervlakte (conform meetinstructie);
– Sfeervolle woonkamer met open keuken circa 35 m²;
– Heerlijke onderhoudsarme stadstuin met poort;
– 3 a 4 goede slaapkamers;
– Moderne badkamer met inloopdouche, wastafel en toilet;
– Gebouwd in het karakteristieke 1900, goed onderhouden en keurig afgewerkt;
– Volledige centrale verwarming en grotendeels geïsoleerd met dubbele beglazing;
– Eigen grond;
– Op loopafstand van het stadshart met de sfeervolle Oude Haven, winkelvoorzieningen, theater, bioscoop, casino en zwembad;
– Nabij openbaar vervoer als metro/bus, binnen 20 minuten in het centrum van Rotterdam of Hoek van Holland strand;
– Via uitvalswegen als de A20 en A4 bent u al snel in Rotterdam, Delft of Den Haag.

Overige
Huis kopen? Neem uw eigen NVM Aankoopmakelaar mee!
Download nu via www.dewittegarantiemakelaars.nl de brochure van deze woning.

Een daadwerkelijke koopovereenkomst komt pas tot stand nadat beide partijen de schriftelijke overeenkomst hebben ondertekend.

Toelichtingsclausule Meetinstructie
De Meetinstructie is gebaseerd op de NEN2580. De Meetinstructie is bedoeld om een meer eenduidige manier van meten toe te passen voor het geven van een indicatie van de gebruiksoppervlakte. De Meetinstructie sluit verschillen in meetuitkomsten niet volledig uit, door bijvoorbeeld interpretatieverschillen, afrondingen of beperkingen bij het uitvoeren van de meting.

Nadrukkelijk zij vermeld, dat deze vrijblijvende informatieverstrekking niet als een aanbieding of een offerte mag worden beschouwd. Aan deze gegevens kunnen geen rechten worden ontleend.

  • 85 m2
  • 73 m2
  • 4

Kenmerken Eendrachtstraat 40

Overdracht

Vraagprijs€ 325.000,- k.k.
AanvaardingIn overleg

Oppervlaktes en inhoud

Perceel oppervlakte73 m2
Woonoppervlakte85 m2
Inhoud304 m3

Bouw

SoortEengezinswoning
BouwvormBestaande bouw
Bouwjaar1900
Dak typeZadeldak
IsolatievormenGrotendeels dubbelglas
EnergielabelE

Indeling

Aantal verdiepingen2
Aantal kamers5
Aantal slaapkamers4
Aantal badkamers1

Kenmerken van verkoper en vrienden

Zelf toevoegen

Ken jij dit huis of deze buurt? Voeg dan in een paar stappen jouw eigen ervaring toe.

Maandlasten

Ligging Eendrachtstraat 40

Voorzieningen

Centraal gelegen informatie over de buurt

Aantal inwoners

In de gemeente

71.999

Leeftijd

in percentages van totaal

Huishoudsamenstelling

in percentages van totaal

44%

20% NL

24%

20% NL

32%

20% NL

Vergelijkbaar woningaanbod