Ga naar inhoud

Te koop: woonhuis Eleonorastraat 103 3135 PA Vlaardingen

De Witte Garantiemakelaars Vlaardingen
Neem contact met mij op

Verkocht

€ 475.000,- k.k.

bied op deze woning

In een geliefde woonwijk nabij het centrum van Vlaardingen mogen wij deze ruime en jonge eengezinswoning met energielabel A en garage te koop aanbieden.
Deze heerlijke woning beschikt onder andere over een zonnige woonkamer, 4 goede slaapkamers en een achtertuin op het zonnige zuidwesten met zowel garage als een separate berging.

Met de voordeur aan een autoluw straatje en op loopafstand van winkelcentrum Van Hogendorpkwartier is de ligging van deze fijne woning ideaal te noemen. De woonwijk Babberspolder West is in de afgelopen jaren uitgegroeid tot een zeer populaire en kindvriendelijke buurt en diverse scholen, het openbaar vervoer en kinderspeeltuinen zijn dan ook in de directe omgeving aanwezig. In vijf fietsminuten zit u middenin het centrum van Vlaardingen waar u heerlijk kunt genieten van diverse restaurantjes en cafeetjes. Ook uitvalswegen als de A4 en A20 zijn binnen no time bereikbaar.

Onderstaand geven wij u een schriftelijke rondleiding, maar wij begrijpen heel goed dat u deze zeer ruime woning graag met eigen ogen zou willen bekijken. Wacht niet te lang voor het maken van een bezichtigingsafspraak voor een persoonlijke bezichtiging met één van onze makelaars.

Indeling

Begane grond
Nadat u uw auto in de woonwijk of in uw eigen garage heeft geparkeerd, heeft u middels de tuin toegang tot de woning. De ruime entree aan de voorzijde is voorzien van een garderoberuimte, keurig toilet met hand wasbakje, betegeld tot het plafond, meterkast en trapopgang naar de verdiepingen.

De keurige open keuken is gelegen aan de voorzijde van de woning en beschikt over alle hedendaagse inbouwapparatuur met onder andere een 4-pits gaskookplaat met afzuigkap, oven, koelkast met vriesvak, vaatwasser en spoelbak met close-in boiler.
De ruime tuingerichte woonkamer beschikt over een oppervlakte van maar liefst 30 m². De gehele begane grond is voorzien van een moderne houtlook laminaatvloer en strakke wanden, tevens is er een trapkast aanwezig, welke ideaal is als opbergruimte.

Middels de grote schuifpui wordt u de toegang verstrekt tot de zonnige achtertuin op het zuidwesten. Door de fijne ligging van de woning bent u aan de achterzijde vrij gelegen en kunt u van de ochtend tot de avond heerlijk genieten van het zonnetje.

De achtertuin is keurig betegeld en voorzien van meerdere zonnige terrassen, voorzien van zonwering en groene borders. Het is mogelijk de achterom weer te openen.
Er is nog een vrijstaande stenen berging met elektra van circa 6 m².
En een vrijstaande stenen garage voorzien van elektra circa 18 m².

Eerste etage
Vanaf de overloop heeft u toegang tot de drie fijne slaapkamers, de ruime badkamer en middels een vaste trap wordt u de toegang verstrekt tot de tweede etage.

Slaapkamer 1 is aan de voorzijde van de woning gelegen en heeft een oppervlakte van bijna 11 m².
Slaapkamer 2 en 3 zijn aan de achterzijde van de woning gelegen en hebben respectievelijk een oppervlakte van ruim 9 m² en bijna 17 m².

De ruime badkamer is voorzien van zowel een ligbad als een douchecabine, een 2e toilet, een wastafel, radiator, een raampje en mechanische afzuiging.

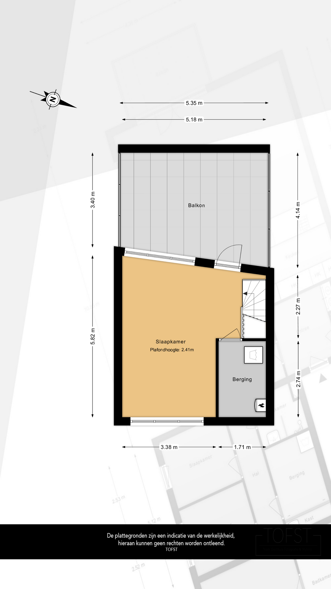
Tweede etage
De enorme zolderverdieping beschikt door het platte dak over een grote hoeveelheid ruimte, waardoor indien wenselijk een vijfde slaapkamer gecreeerd kan worden.

De open ruimte beschikt over een oppervlakte van 21 m² en is voorzien van een loopdeur wordt de toegang verstrekt tot het riante dakterras, welke eveneens is gelegen op het zonnige zuidwesten.

De was- stookruimte is aan de voorzijde gecreëerd. Deze ruimte is voorzien van de opstelling van de cv-combiketel en mechanische ventilatiebox. Tevens zijn hier de aansluitingen van de wasmachine en droger aanwezig.

Bijzonderheden:
– Riante eengezinswoning in de geliefde woonwijk Babberspolder West;
– Woonoppervlakte 124 m² (gemeten conform de meetinstructie);
– Zonnige achtertuin met zonnig dakterras;
– Separate stenen garage en tevens stenen berging in de achtertuin;
– Gebouwd in 1994, volledig geïsoleerd en voorzien van energielabel A;
– De woning is gelegen op afgekochte erfpachtgrond. Het recht van erfpacht loopt tot 23 april 2043 en de canon is voor deze gehele looptijd afgekocht;
– Nabij winkelcentrum van Hogendorplaan met supermarkten en divers winkelaanbod;
– Op korte loopafstand van het metrostation Vlaardingen Oost om in 10 minuten in hartje Rotterdam en binnen 15 minuten op het strand van Hoek van Holland uit te komen;
– Uitvalswegen als de A20 en A4 op korte afstand om snel in omringende grote steden als Rotterdam, Den Haag of Delft uit te komen.

Overige
Huis kopen? Neem uw eigen NVM Aankoopmakelaar mee!
Download nu via www.dewittegarantiemakelaars.nl de brochure van deze woning.

Een daadwerkelijke koopovereenkomst komt pas tot stand nadat beide partijen de schriftelijke overeenkomst hebben ondertekend.

Toelichtingsclausule Meetinstructie
De Meetinstructie is gebaseerd op de NEN2580. De Meetinstructie is bedoeld om een meer eenduidige manier van meten toe te passen voor het geven van een indicatie van de gebruiksoppervlakte. De Meetinstructie sluit verschillen in meetuitkomsten niet volledig uit, door bijvoorbeeld interpretatieverschillen, afrondingen of beperkingen bij het uitvoeren van de meting.

Nadrukkelijk zij vermeld, dat deze vrijblijvende informatieverstrekking niet als een aanbieding of een offerte mag worden beschouwd. Aan deze gegevens kunnen geen rechten worden ontleend.

  • 124 m2
  • 169 m2
  • 4

Kenmerken Eleonorastraat 103

Overdracht

Vraagprijs€ 475.000,- k.k.
AanvaardingIn overleg

Oppervlaktes en inhoud

Perceel oppervlakte169 m2
Woonoppervlakte124 m2
Inhoud428 m3

Bouw

SoortEengezinswoning
BouwvormBestaande bouw
Bouwjaar1994
Dak typePlat dak
IsolatievormenDakisolatie, Muurisolatie, Vloerisolatie, Dubbelglas, Volledig geïsoleerd
EnergielabelA

Indeling

Aantal verdiepingen3
Aantal kamers5
Aantal slaapkamers4
Aantal badkamers1

Maandlasten

Ligging Eleonorastraat 103

Voorzieningen

Centraal gelegen informatie over de buurt

Aantal inwoners

In de gemeente

71.999

Leeftijd

in percentages van totaal

Huishoudsamenstelling

in percentages van totaal

33%

20% NL

30%

20% NL

36%

20% NL

Vergelijkbaar woningaanbod