Ga naar inhoud

Te koop: appartement Karel de Grotelaan 54 3132 JV Vlaardingen

De Witte Garantiemakelaars Vlaardingen
Neem contact met mij op

Verkocht

€ 250.000,- k.k.

bied op deze woning

Bent u ook op zoek naar dat ene appartement met vrij uitzicht vanuit alle kamers? Dan moet u beslist verder lezen. Dit ruime 4-kamer appartement ligt op de derde etage van een klein complex met lift en heeft een fijn balkon met middag- en avondzon. Het balkon heeft vrij uitzicht op op de groene omgeving. Op de etage zijn slechts 2 appartementen waardoor u al snel het gevoel van vrijheid heeft. De woning ligt vlakbij diverse recreatiegebieden.

Het appartementen gebouw is omringd door groen en de actieve V.v.E zorgt voor de fraai aangelegde siertuin. Uw auto kunt u altijd dichtbij parkeren. Maar bij het appartement bieden wij ook een garage aan met een vraagprijs van € 45.000.- k.k.

Ideaal gelegen dichtbij uitvalswegen naar het Westland en Rotterdam. Ook het openbaar vervoer is op een steenworp afstand.

Dit mooi gelegen appartement kunt u naar eigen smaak moderniseren. Tijdens een persoonlijke bezichtiging vertellen wij u graag naar de mogelijkheden.

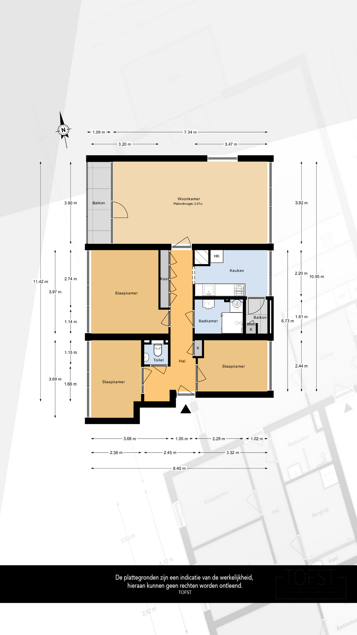
Indeling:

De lift brengt u vanaf de entreehal van het complex naar de derde etage waar u uitkomt in het portiek met maar 1 andere buurwoning. Via de voordeur komt u in de ruime entreehal met garderoberuimte waarvandaan alle vertrekken te bereiken zijn.
Aan het einde van deze hal vindt u de ruime woonkamer met veel lichtinval en een extra raam aan de zijgevel. Via de woonkamer is er toegang tot het zonnige balkon.

De dichte keuken is voorzien van een recht keukenblok in lichte kleurstelling en beschikt over een koelkast, combimagnetron, vaatwasser, gaskookplaat en afzuigkap. Vanuit de keuken er is toegang tot het tweede balkon met een vaste kast en eveneens een mooi vrij uitzicht.

In het appartement bevinden zich 3 slaapkamers met fijne afmetingen en resp. 15, 8 en 8 m²

De badkamer is ruim opgezet. volledig betegeld en beschikt over een douchecabine, wastafelmeubel, wasmachine en de opstelling van de elektrische boiler.
Er is een apart volledig betegeld toilet met fonteintje aanwezig.

Bijzonderheden:
– Woonoppervlakte circa 88 m² (conform de meetinstructie);
– Geheel voorzien dubbel glas;
– Actieve Vereniging van Eigenaren, bijdrage van € 200,- per maand;
– Blokverwarming, voorschot stookkosten € 245,- per maand;
– Gelegen op erfpachtgrond lopende tot en met 31 juli 2062 met een vaste jaarlijkse canon van € 113,45;
– Bouwjaar circa 1968;
– Mogelijkheid tot de aankoop van een garage in hetzelfde complex met een vraagprijs van € 45.000,- k.k.
– Op korte afstand van het centrum met supermarkten, gezellige horecagelegenheden, divers winkelaanbod, sportscholen, casino en theater, winkelcentrum Van Hogendorpkwartier, scholen, openbaar vervoer en uitvalswegen als de A4 en de A20;
– Oplevering in overleg, maar kan snel;
– Gezien het bouwjaar van de woning zal er een ouderdomsclausule worden opgenomen in de koopovereenkomst.

Overige
Huis kopen? Neem uw eigen NVM Aankoopmakelaar mee!
Download nu via www.dewittegarantiemakelaars.nl de brochure van deze woning.

Een daadwerkelijke koopovereenkomst komt pas tot stand nadat beide partijen de schriftelijke overeenkomst hebben ondertekend.

Toelichtingsclausule Meetinstructie
De Meetinstructie is gebaseerd op de NEN2580. De Meetinstructie is bedoeld om een meer eenduidige manier van meten toe te passen voor het geven van een indicatie van de gebruiksoppervlakte. De Meetinstructie sluit verschillen in meetuitkomsten niet volledig uit, door bijvoorbeeld interpretatieverschillen, afrondingen of beperkingen bij het uitvoeren van de meting.

Nadrukkelijk zij vermeld, dat deze vrijblijvende informatieverstrekking niet als een aanbieding of een offerte mag worden beschouwd. Aan deze gegevens kunnen geen rechten worden ontleend.

  • 88 m2
  • 3

Kenmerken Karel de Grotelaan 54

Overdracht

Vraagprijs€ 250.000,- k.k.
AanvaardingIn overleg

Oppervlaktes en inhoud

Woonoppervlakte88 m2
Inhoud274 m3

Bouw

SoortPortiekflat
BouwvormBestaande bouw
Bouwjaar1968
Dak typePlat dak
IsolatievormenDubbelglas
EnergielabelE

Indeling

Aantal verdiepingen1
Aantal kamers4
Aantal slaapkamers3
Aantal badkamers1

Maandlasten

Ligging Karel de Grotelaan 54

Voorzieningen

Centraal gelegen informatie over de buurt

Aantal inwoners

In de gemeente

71.999

Leeftijd

in percentages van totaal

Huishoudsamenstelling

in percentages van totaal

43%

20% NL

28%

20% NL

29%

20% NL

Vergelijkbaar woningaanbod