Ga naar inhoud

Te koop: appartement Korte Hoogstraat 30C 3131 BK Vlaardingen

De Witte Garantiemakelaars Vlaardingen
Neem contact met mij op

Verkocht

€ 235.000,- k.k.

bied op deze woning

Wij hebben er weer één! Zo een heerlijk afgewerkt en instapklaar hoek appartement midden in het centrum van Vlaardingen!

Dit fijne 2 voorheen 4 kamer appartement is gelegen op de 2e woonlaag van een complex met een actieve vereniging van eigenaren en is volledig voorzien van centrale verwarming en kunststof kozijnen met dubbele beglazing.
Binnen is de woning zeer netjes afgewerkt en voorzien van een een sfeervolle, maar ook ruime woonkamer met riante open keuken opstelling voorzien van zitbar en balkon 1. Daarnaast is er nog een royale badkamer met een fijne slaapkamer (mogelijkheid een extra slaapkamer terug te brengen naar totaal 2 slaapkamers) voorzien van balkon 2. Tevens bevindt zich een berging box in de onderbouw van het complex.

De woning is gelegen middenin het centrum van Vlaardingen, waardoor de winkels en diverse leuke cafeetjes om de hoek zijn gelegen, maar ook voor het openbaar vervoer en scholen hoeft u niet ver te lopen. Overige voorzieningen, waaronder zwembad De Kulk, Vue bioscoop Vlaardingen en het theater de Stadsgehoorzaal zijn tevens in de omgeving aanwezig. Indien u even tot rust wilt komen dan ligt natuurgebied de Broekpolder op loopafstand, waar u gebruik kunt maken van diverse wandel- en fietsroutes.

Onderstaand geven wij u een schriftelijke tour door dit fijne appartement, maar wij nodigen u graag uit voor een persoonlijke bezichtiging.

Begane grond
Middels een afgesloten portiek met bellentableau op de Gedempte Biersloot heeft u toegang tot het trappenhuis die u de toegang verstrekt naar het portiek waar de woning is gelegen op de 2e woonlaag. Tevens heeft u vanuit dit portiek toegang tot de berging welke is gelegen in de onderbouw van het complex.

Tweede woonlaag
Vanuit de ruime centrale hal met garderoberuimte vindt u de keurige toiletruimte en heeft u toegang tot de diverse vertrekken.

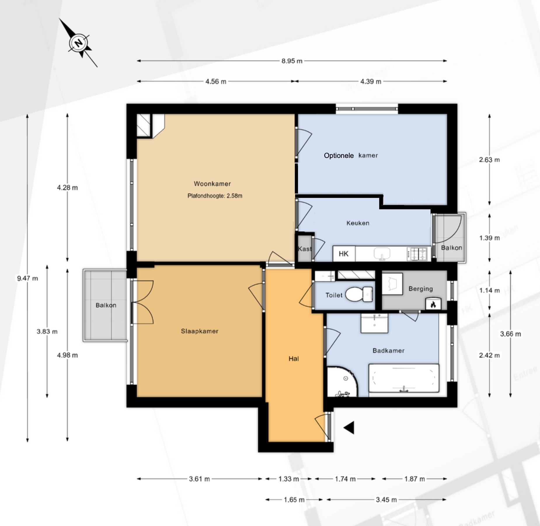
De sfeervolle woonkamer op een hoek is circa 28 m² heeft een uitzicht over zowel de Korte Hoogstraat en de Gedempte Biersloot en is voorzien van een hout look laminaatvloer en strakke wandafwerking.
Vanuit de woonkamer loopt u door naar de open keuken van circa 8 m² met zitbar, welke is voorzien van alle hedendaagse keukenapparatuur als een gasfornuis met afzuigschouw, koelkast, vriezer, vaatwasser, veel kastruimte en inbouw spots boven de bar. Meterkast.
Balkon 1 om te luchten.

Slaapkamer 1 is circa 14 m² en aan de achterzijde gelegen, een moderne hout look laminaatvloer en strakke wandafwerking, grote kast en verstrekt u de toegang tot het balkon.

De vergrote badkamer is circa 8 m² en voorzien van zowel een ligbad als douchecabine, een wastafelmeubel met spiegelkast, een design radiator en is betegeld tot het plafond. Hier is ook de toegang tot de separate wasruimte met opstelling wasmachine wasdroger, cv-combiketel en raampje.

Bergingbox circa 5 m² in de onderbouw.

Bijzonderheden
– Instapklaar 2 voorheen 4 kamer appartement gelegen op de 2e etage;
– Goed onderhouden en keurig afgewerkt;
– Gelegen in het hartje centrum van Vlaardingen;
– Woonoppervlakte circa 74 m² (gemeten conform meetinstructie);
– Volledig voorzien van kunststof kozijnen met dubbele beglazing;
– De woning is gelegen op erfpacht € 31 per jaar tot en met 30 september 2054;
– Actieve vereniging van eigenaren met een maandelijkse bijdrage van € 111;
– De woning wordt verkocht in combinatie met de ouderdomsclausule en niet bewoningsclausule;
– De woning is in het bezit van energielabel D;
– Oplevering in overleg, kan snel.

Overige
Huis kopen? Neem uw eigen NVM Aankoopmakelaar mee!
Download nu via www.dewittegarantiemakelaars.nl de brochure van deze woning.

Een daadwerkelijke koopovereenkomst komt pas tot stand nadat beide partijen de schriftelijke overeenkomst hebben ondertekend.

Toelichtingsclausule Meetinstructie
De Meetinstructie is gebaseerd op de NEN2580. De Meetinstructie is bedoeld om een meer eenduidige manier van meten toe te passen voor het geven van een indicatie van de gebruiksoppervlakte. De Meetinstructie sluit verschillen in meetuitkomsten niet volledig uit, door bijvoorbeeld interpretatieverschillen, afrondingen of beperkingen bij het uitvoeren van de meting.

Nadrukkelijk zij vermeld, dat deze vrijblijvende informatieverstrekking niet als een aanbieding of een offerte mag worden beschouwd. Aan deze gegevens kunnen geen rechten worden ontleend.

  • 74 m2
  • 2

Kenmerken Korte Hoogstraat 30C

Overdracht

Vraagprijs€ 235.000,- k.k.
AanvaardingIn overleg

Oppervlaktes en inhoud

Woonoppervlakte74 m2
Inhoud236 m3

Bouw

SoortPortiekwoning
BouwvormBestaande bouw
Bouwjaar1956
Dak typePlat dak
IsolatievormenDubbelglas
EnergielabelD

Indeling

Aantal verdiepingen1
Aantal kamers3
Aantal slaapkamers2
Aantal badkamers1

Maandlasten

Ligging Korte Hoogstraat 30C

Voorzieningen

Centraal gelegen informatie over de buurt

Aantal inwoners

In de gemeente

71.999

Leeftijd

in percentages van totaal

Huishoudsamenstelling

in percentages van totaal

49%

20% NL

26%

20% NL

25%

20% NL

Vergelijkbaar woningaanbod