Ga naar inhoud

Te koop: appartement Messchaertplein 59 3131 TG Vlaardingen

De Witte Garantiemakelaars Vlaardingen
Neem contact met mij op

Verkocht

€ 200.000,- k.k.

bied op deze woning

In de geliefde karakteristieke Vettenoordse Polder mogen wij u deze leuke 3 voorheen 4 kamer benedenwoning met royale woonkamer en een ruime en beschutte achtertuin gelegen aan stadsparkje, te koop aan bieden.

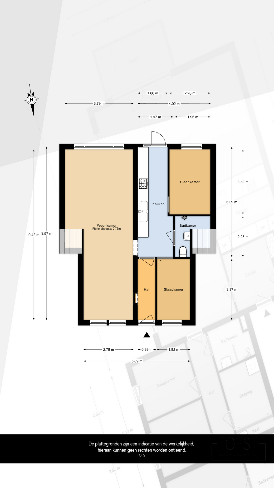
Bij binnenkomst in de hal komt u uit in de royale woonkamer van maar liefst 32 m² met separate keuken. Middels de achterdeur komt u in de achtertuin voorzien van ruime berging en een achterom. Er zijn 2 goede slaapkamers met een badkamer en een toilet. Er kan nog een 3e slaapkamer worden gerealiseerd.

Deze leuke woning is gebouwd in het jaar 1933, voorzien van centrale verwarming en nog goed te verduurzamen met energielabel D. En verder onderdeel van een actieve vereniging van eigenaren met een redelijke maandelijkse bijdrage van 100 euro.

De ligging in de karakteristieke buurt is zeer centraal, nabij het hoofd winkelcentrum met verschillende horecagelegenheden, winkels, Vue bioscoop, casino, theater de Stadsgehoorzaal, zwembad de Kulk en De Broekpolder met De Vaart om te recreëren of om rustig te wandelen. Ook is openbaar vervoer als bus en metro op loopafstand en uitvalswegen als de A4 en de A20 heel goed bereikbaar om binnen 20 minuten in Rotterdam, Delft of Hoek van Holland strand uit te komen. Gratis parkeren voor de deur.

Indeling
Entree woning, gang/hal met meterkast.

Doorzon woonkamer circa 32 m² voorzien van grenen houten vloerdelen.
Ruime keuken achterzijde voorzien van een gas kookplaat met afzuigschouw, oven, spoelbak, opstelling wasmachine en veel bergruimte.

Slaapkamer 1 voorzijde circa 6 m².
Slaapkamer 2 achterzijde circa 7 m²;

Keurige badkamer circa 3 m² voorzien van douchehoek, wasbakje met spiegel, toilet en betegeld tot het plafond.

Ruime en beschutte achtertuin circa 84 m² voorzien van ruime houten berging.

Bijzonderheden
– Leuke en ruime 3 voorheen 4 kamer benedenwoning aan stadsparkje;
– Woonoppervlakte 65 m² (gemeten volgens de meetinstructie);
– Woonkamer van circa 32 m²;
– Ruime achtertuin circa 84 m² met ruime berging;
– 2 voorheen 3 goede slaapkamers;
– Badkamer met douchehoek en toilet;
– Gebouwd in 1933 en onderdeel van een actieve vve met een maandelijkse bijdrage van 100 euro;
– Goed te verduurzamen, op dit moment voorzien van energielabel D, geen ketel aanwezig;
– De woning is gelegen op eeuwigdurend vaste lage erfpacht € 24,66 per jaar;
– Voldoende gratis openbare parkeerruimte;
– Ligging in de karakteristieke Vettenoordse Polder nabij het hoofdwinkelcentrum met horeca, bioscoop, casino, theater de Stadsgehoorzaal;
– In de buurt van OV als bus op loopafstand en uitvalswegen als de A4 en de A20 om binnen 20 minuten in Rotterdam, Delft of Hoek van Holland strand uit te komen.

Overige
Huis kopen? Neem uw eigen NVM Aankoopmakelaar mee!
Download nu via www.dewittegarantiemakelaars.nl de brochure van deze woning.

Een daadwerkelijke koopovereenkomst komt pas tot stand nadat beide partijen de schriftelijke overeenkomst hebben ondertekend.

Toelichtingsclausule Meetinstructie
De Meetinstructie is gebaseerd op de NEN2580. De Meetinstructie is bedoeld om een meer eenduidige manier van meten toe te passen voor het geven van een indicatie van de gebruiksoppervlakte. De Meetinstructie sluit verschillen in meetuitkomsten niet volledig uit, door bijvoorbeeld interpretatieverschillen, afrondingen of beperkingen bij het uitvoeren van de meting.

Nadrukkelijk zij vermeld, dat deze vrijblijvende informatieverstrekking niet als een aanbieding of een offerte mag worden beschouwd. Aan deze gegevens kunnen geen rechten worden ontleend.

  • 65 m2
  • 2

Kenmerken Messchaertplein 59

Overdracht

Vraagprijs€ 200.000,- k.k.
AanvaardingIn overleg

Oppervlaktes en inhoud

Woonoppervlakte65 m2
Inhoud223 m3

Bouw

SoortBenedenwoning
BouwvormBestaande bouw
Bouwjaar1933
Dak typeSamengesteld dak
EnergielabelD

Indeling

Aantal verdiepingen1
Aantal kamers3
Aantal slaapkamers2
Aantal badkamers1

Maandlasten

Ligging Messchaertplein 59

Voorzieningen

Centraal gelegen informatie over de buurt

Aantal inwoners

In de gemeente

71.999

Leeftijd

in percentages van totaal

Huishoudsamenstelling

in percentages van totaal

42%

20% NL

22%

20% NL

36%

20% NL

Vergelijkbaar woningaanbod