Ga naar inhoud

Te koop: woonhuis Paul Henri Spaakring 31 3137 DH Vlaardingen

De Witte Garantiemakelaars Vlaardingen
Neem contact met mij op

Verkocht

€ 719.000,- k.k.

bied op deze woning

Unieke kans!

Welkom in deze schitterende, volledig geïsoleerde unieke vrijstaande woning, gelegen op 227 m² eigen grond in de geliefde en kindvriendelijke wijk Holy-Noord. Deze woning is zeer gunstig gelegen, gebouwd in 1991 met duurzame materialen en uitstekend onderhouden, biedt u maar liefst 6 kamers, inclusief een werkkamer op de begane grond, een eigen parkeerplaats en is voorzien van alle moderne gemakken.

Indeling

Begane Grond
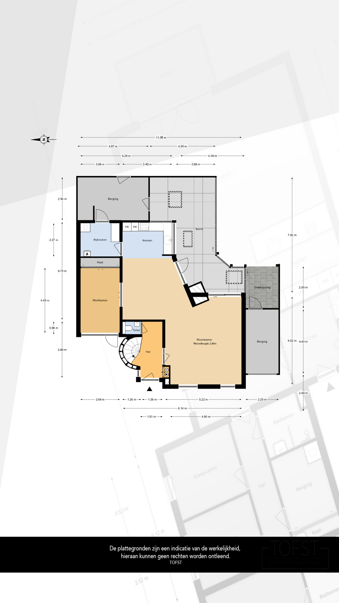
Bij aankomst parkeert u uw auto comfortabel op uw eigen oprit, direct voor de woning. De onderhoudsarme voortuin van circa 36 m² biedt toegang tot de woning, de werkkamer en een van de twee ruime bergingen.

Via de entree komt u binnen in een stijlvolle hal, afgewerkt met een gietvloer en een uniek architectonisch trappenhuis met glazen bouwstenen. De hal geeft toegang tot het toilet met hangend closet en mechanische afzuiging.

De riante woonkamer van circa 42 m² straalt warmte en gezelligheid uit, dankzij de Frans stenen schouw met siergashaard en een prachtige eikenhouten visgraatvloer. De woonkamer is onderverdeeld in een comfortabele zithoek en een ruime eethoek, beide met directe toegang tot de zonnige achtertuin via een schuifpui.

De open keuken van circa 8 m² is een droom voor iedere kookliefhebber. Uitgerust met een schiereiland en een granieten werkblad, biedt de keuken alle moderne inbouwapparatuur, waaronder een inductiekookplaat met afzuigschouw, een combi-oven, een koel-vriescombinatie, een vaatwasser en een spoelbak met close-in boiler. Aansluitend vindt u een praktische bijkeuken van circa 6 m² met ruimte voor uw wasmachine, droger en extra bergruimte.

De prachtige achtertuin van circa 64 m² is een oase van rust en comfort. Het terras is volledig betegeld en omgeven door leibomen, terwijl de royale veranda met glazen schuifwanden, daklichten, houtkachel en elektrische heater u het hele jaar door laat genieten van buitenleven. De serre is bovendien voorzien van verlichting en camerabeveiliging. Achterin de tuin vindt u nog een extra berging van circa 13 m², ideaal voor fietsen of als werkplaats.

Eerste en tweede verdieping
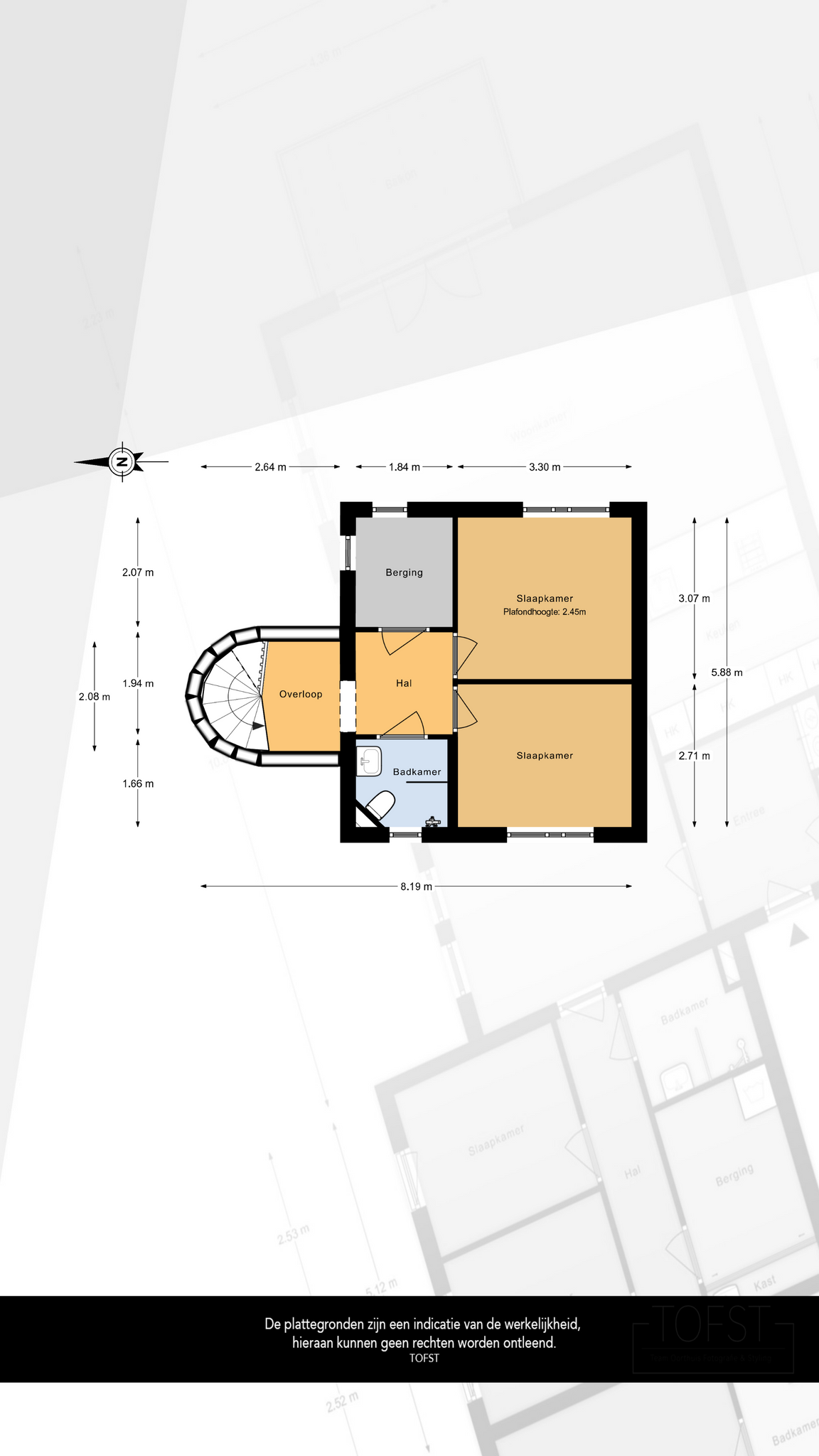
Op de eerste verdieping vindt u twee ruime slaapkamers van circa 16 en 6 m², waarvan één is voorzien van airconditioning. De royale badkamer van circa 5 m² biedt alle comfort met een ligbad, douchecabine, wastafelmeubel met verlichte spiegel, tweede toilet en een designradiator.

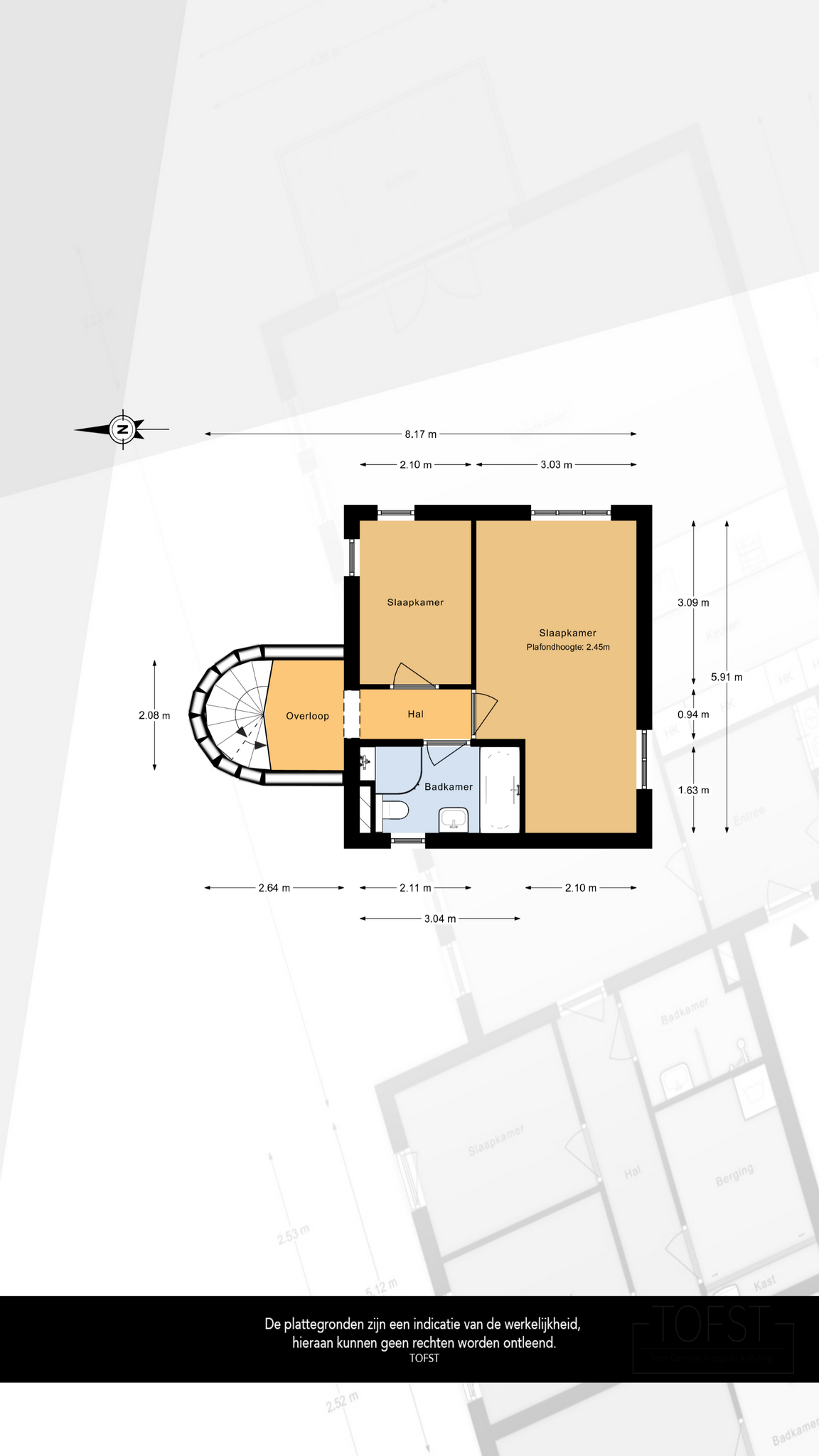
De tweede verdieping herbergt nog eens twee slaapkamers van circa 9 en 10 m², beide voorzien van airconditioning, en een tweede badkamer van circa 3 m². Deze moderne badkamer is uitgerust met een inloopdouche, wastafelmeubel met verlichte spiegel, derde toilet en is volledig betegeld. Een extra inpandige berging van circa 4 m² biedt ruimte voor opslag of kan zelfs worden ingericht als werkplek.

Ideale ligging
De ligging is ideaal aan een autoluwe straat aan de rand van de geliefde en kindvriendelijke woonwijk Holy-Noord op loopafstand van het kinderboerderij Holywood, geweldige natuur- en recreatiegebied Midden-Delfland, maar ook ‘De Broekpolder’ met ‘De Vaart’. Hier kunt u genieten van de natuur, de watersport, de golfbaan, het sportcentrum en het klauterwoud. In de wijk vindt u diverse scholen, zowel basisscholen als voortgezet onderwijs. De ligging is ook ideaal ten opzichte van het uitstekende winkelcentrum ‘De Loper’, openbaar vervoer als bus/tram en uitvalswegen als de A4 en A20 om binnen 30 minuten uit te komen in Rotterdam, Delft of Hoek van Holland strand.

Deze woning biedt de perfecte combinatie van luxe, comfort en een ideale locatie. Maak snel een afspraak voor een bezichtiging en ervaar zelf de charme en ruimte die deze prachtige woning te bieden heeft!

Bijzonderheden
– Rustig gelegen aan groenstrook in de geliefde woonwijk Holy-Noord;
– Woonoppervlakte 161 m² en 21 m² overig inpandige ruimte (conform de meetinstructie);
– 227 m² eigen grond;
– Oprit voor eigen auto;
– Ruime living van 42 m² met schuifpui naar de tuin;
– Open keuken met bijkeuken;
– Ruime achtertuin met terras, royale veranda en dubbele berging;
– Voorzien van werkkamer op de begane grond mogelijk te gebruiken als extra slaapkamer of werkruimte;
– 4 ruime slaapkamers met inpandige berging welke ook als werkkamer of inloopkast kan worden gebruikt;
– Dubbele badkamer en op elke etage een toilet;
– Bouwjaar 1991, volledig geisoleerd, goed onderhouden en keurig afgewerkt;
– Nabij het uitstekende winkelcentrum De Loper, goede busverbinding en uitvalswegen als de A20 en A4;
– Gelegen nabij Midden-Delfland en groene en recreatieve omgeving De Broekpolder met De Vaart.

Overige
Huis kopen? Neem uw eigen NVM Aankoopmakelaar mee!
download nu via www.dewittegarantiemakelaars.nl de brochure van deze woning.

Een daadwerkelijke koopovereenkomst komt pas tot stand nadat beide partijen de schriftelijke overeenkomst hebben ondertekend

Toelichtingsclausule Meetinstructie
De Meetinstructie is gebaseerd op de NEN2580. De Meetinstructie is bedoeld om een meer eenduidige manier van meten toe te passen voor het geven van een indicatie van de gebruiksoppervlakte. De Meetinstructie sluit verschillen in meetuitkomsten niet volledig uit, door bijvoorbeeld interpretatieverschillen, afrondingen of beperkingen bij het uitvoeren van de meting.

Nadrukkelijk zij vermeld, dat deze vrijblijvende informatieverstrekking niet als een aanbieding of een offerte mag worden beschouwd. Aan deze gegevens kunnen geen rechten worden ontleend.

  • 161 m2
  • 227 m2
  • 5

Kenmerken Paul Henri Spaakring 31

Overdracht

Vraagprijs€ 719.000,- k.k.
AanvaardingIn overleg

Oppervlaktes en inhoud

Perceel oppervlakte227 m2
Woonoppervlakte161 m2
Inhoud630 m3

Bouw

SoortHerenhuis
BouwvormBestaande bouw
Bouwjaar1991
Dak typePlat dak
IsolatievormenDakisolatie, Muurisolatie, Vloerisolatie, Dubbelglas, Volledig geïsoleerd
EnergielabelC

Indeling

Aantal verdiepingen3
Aantal kamers6
Aantal slaapkamers5
Aantal badkamers2

Maandlasten

Ligging Paul Henri Spaakring 31

Voorzieningen

Centraal gelegen informatie over de buurt

Aantal inwoners

In de gemeente

71.999

Leeftijd

in percentages van totaal

Huishoudsamenstelling

in percentages van totaal

41%

20% NL

27%

20% NL

32%

20% NL

Vergelijkbaar woningaanbod