Ga naar inhoud

Te koop: appartement Verheijstraat 101 3131 DR Vlaardingen

De Witte Garantiemakelaars Vlaardingen
Neem contact met mij op

Verkocht

€ 209.000,- k.k.

bied op deze woning

In het hartje van de karakteristieke Vettenoordse Polder mogen wij u deze ruime 3 a 4 kamer bovenwoning van 71 m² groot met 2 goede slaapkamers, een woonkamer en woonkeuken van totaal circa 28 m² en een balkon op het zonnige zuiden, te koop aan bieden.

Deze leuke woning is gebouwd in het karakteristieke 1935, is gelegen op eigen grond, redelijk onderhouden, energielabel D, volledig voorzien van centrale verwarming en maakt onderdeel uit van een actieve vereniging van eigenaren.

De ligging in de karakteristieke buurt is zeer centraal, nabij het hoofd winkelcentrum met verschillende horecagelegenheden, winkels, Vue bioscoop, casino, theater de Stadsgehoorzaal en zwembad de Kulk.
Ook is openbaar vervoer als bus en metro op loopafstand en uitvalswegen als de A4 en de A20 heel goed bereikbaar om binnen 20 minuten in Rotterdam, Delft of Hoek van Holland strand uit te komen.

Indeling

Begane grond
Entree woning, meterkast en trap naar eerste verdieping met overloop.

1e verdieping
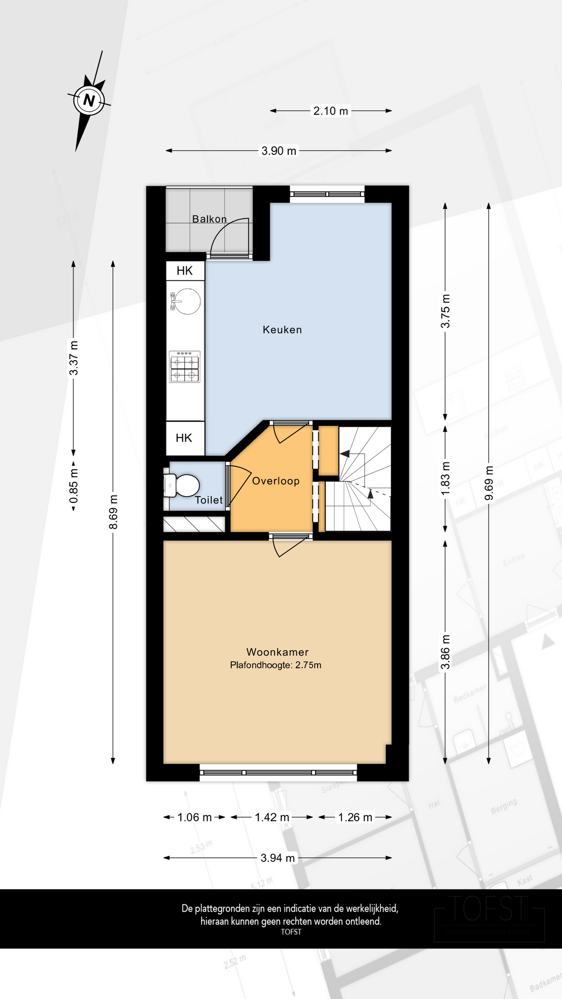
Overloop met toegang tot de woonkamer, de woonkeuken en het toilet.
Keurig toilet, gedeeltelijk betegeld en voorzien van luchtafvoer.

Woonkamer aan de voorzijde circa 15 m² met laminaat vloer.
Woonkeuken aan de achterzijde circa 13 m² voorzien van 4 pits gas kookplaat met afzuigschouw, spoelbak, laminaatvloer en toegang tot het zonnige balkon.

2e verdieping
Overloop met toegang tot 2 slaapkamers en de badkamer.

Slaapkamer 1 aan de voorzijde circa 13 m² voorzien van dakkapel, laminaatvloer en schuif wand kast.
Slaapkamer 2 aan de achterzijde circa 10 m² voorzien van laminaatvloer en vaste kast met opstelling cv-combiketel.

Badkamer circa 3 m² met douchecabine, wastafelmeubel met spiegel, opstelling wasmachine en mechanische afzuiging.

Mogelijk is er een fietsenplaats in de voorgelegen stalling te huren.

Bijzonderheden
– Ruime 3 a 4 kamer bovenwoning;
– Woonoppervlakte 71 m² (gemeten volgens de meetinstructie);
– Woonkamer circa 28 m² verdeeld in woonkamer en woonkeuken;
– 2 goede slaapkamers;
– Balkon op het zonnige zuiden;
– Gelegen op eigen grond;
– Gebouwd in 1935, redelijk goed onderhouden, energielabel D en volledige centrale verwarming;
– Onderdeel van een actieve vereniging van eigenaren met een bijdrage van € 35 per maand;
– Nabij het centrum van Vlaardingen met alle denkbare voorzieningen als gezellige horecagelegenheden, verschillende supermarkten, divers winkelaanbod, casino, theater, bioscoop, zwembad, goede scholen en openbaar vervoer;
– Uitvalswegen als de A20 en de A4 op korte afstand om binnen 25 minuten uit te komen in Rotterdam, Delft, Den Haag of Hoek van Holland strand.

Overige
Huis kopen? Neem uw eigen NVM Aankoopmakelaar mee!
Download nu via www.dewittegarantiemakelaars.nl de brochure van deze woning.

Een daadwerkelijke koopovereenkomst komt pas tot stand nadat beide partijen de schriftelijke overeenkomst hebben ondertekend.

Toelichtingsclausule NEN2580
De Meetinstructie is gebaseerd op de NEN2580. De Meetinstructie is bedoeld om een meer eenduidige manier van meten toe te passen voor het geven van een indicatie van de gebruiksoppervlakte. De Meetinstructie sluit verschillen in meetuitkomsten niet volledig uit, door bijvoorbeeld interpretatieverschillen, afrondingen of beperkingen bij het uitvoeren van de meting.

  • 71 m2
  • 2

Kenmerken Verheijstraat 101

Overdracht

Vraagprijs€ 209.000,- k.k.
AanvaardingIn overleg

Oppervlaktes en inhoud

Woonoppervlakte71 m2
Inhoud246 m3

Bouw

SoortBovenwoning
BouwvormBestaande bouw
Bouwjaar1935
Dak typeSamengesteld dak
EnergielabelD

Indeling

Aantal verdiepingen2
Aantal kamers4
Aantal slaapkamers2
Aantal badkamers1

Maandlasten

Ligging Verheijstraat 101

Voorzieningen

Centraal gelegen informatie over de buurt

Aantal inwoners

In de gemeente

71.999

Leeftijd

in percentages van totaal

Huishoudsamenstelling

in percentages van totaal

42%

20% NL

22%

20% NL

36%

20% NL

Vergelijkbaar woningaanbod