Ga naar inhoud

Te koop: woonhuis Wilhelminastraat 70 3134 CV Vlaardingen

De Witte Garantiemakelaars Vlaardingen
Neem contact met mij op

Verkocht

€ 369.000,- k.k.

bied op deze woning

Midden in de karakteristieke Oostwijk, op loopafstand van het centrum mogen wij deze authentieke en sfeervolle eengezinswoning te koop aanbieden.

Dit karakteristieke huisje is gebouwd rond 1900 en door de huidige eigenaren sfeervol ingericht, goed onderhouden en voorzien van alle hedendaagse afwerkingen. Op de begane grond beschikt de woning over een royale woonkamer met open haard, ornamenten plafond en massief eiken houten vloer en een fraaie open keuken met kookeiland welke toegang biedt tot de zonnige achtertuin op het westen. Op de eerste verdieping zijn drie royale slaapkamers en een badkamer. Als leuke extra beschikt deze woning over een logeerzolder bereikbaar via een staande trap.

De ligging in de geliefde Oostwijk is zeer centraal nabij het winkelcentrum met verschillende supermarkten, gezellige horeca gelegenheden, divers winkelaanbod, bioscoop, casino, theater en stadspark ‘t Hof met een dierenweide om heerlijk te wandelen. Ook zijn er een aantal goede scholen in de buurt, zijn openbaar vervoer als bus en metro op loopafstand en uitvalswegen als de A4 en de A20 heel goed bereikbaar om binnen een kwartier in Rotterdam en binnen 20 minuten in Delft of hoek van Holland uit te komen.

Indeling

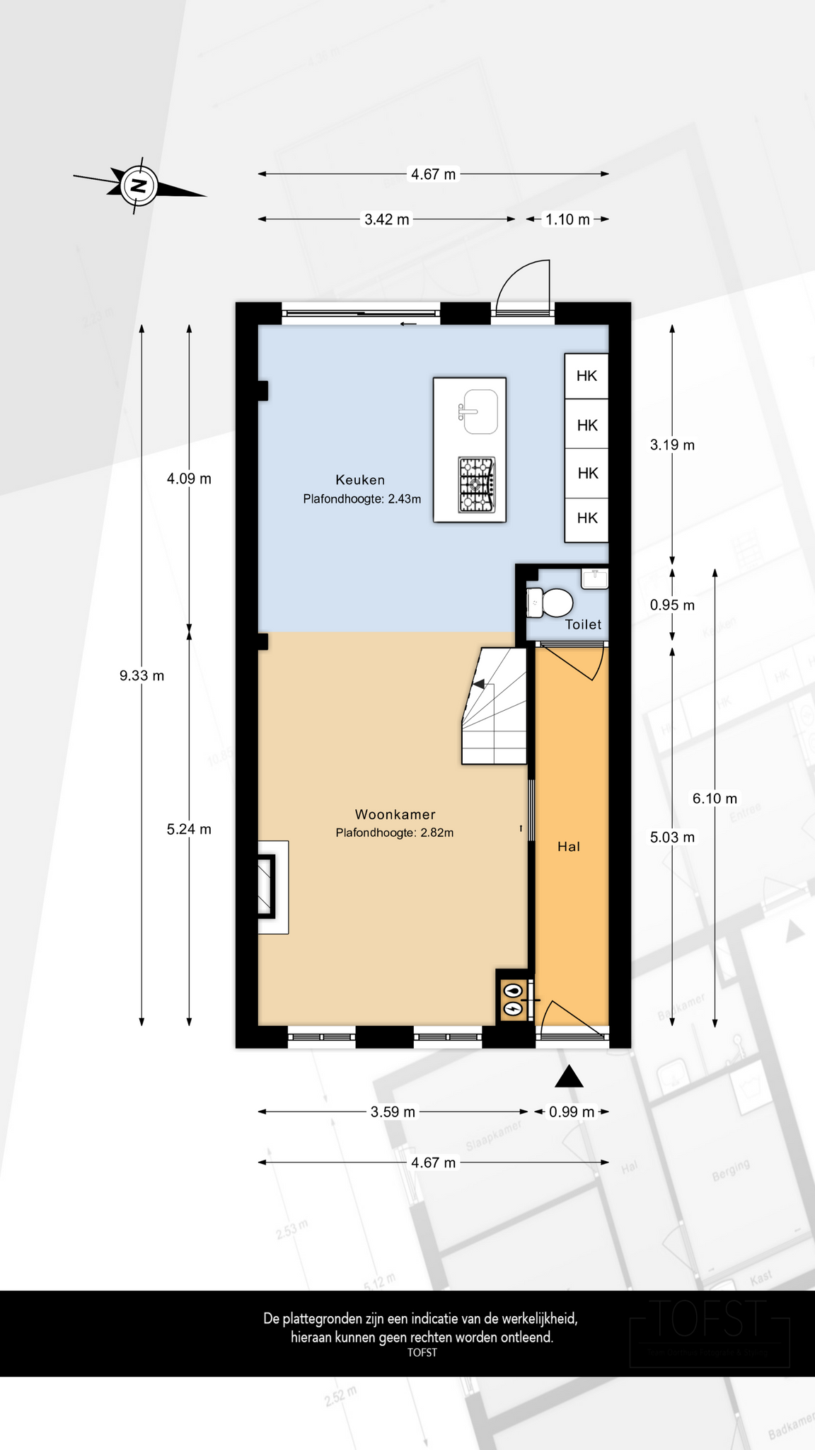
Begane grond
Middels de prachtige originele voordeur kom je binnen in de hal met terazzo tegels, sfeervolle wandlambrisering en meterkast. Aan het einde van de hal bevindt zich het toilet met fonteintje en ingebouwd kastje.

De sfeervolle woonkamer heeft een prachtige massief eiken houten vloer en beschikt verder over een open haard, glad gestuukte wanden en een ornamenten plafond.

De open keuken is gelegen aan de achterzijde en is voorzien van een hoogglans witfront keukenblok met een kookeiland met hardstenen blad en verlaagd plafond met inbouwspots. De keuken is voorzien van de navolgende inbouwapparatuur: 5-pits gaskookplaat, afzuigkap, koel-vriescombinatie, twee combimagnetrons en een vaatwasser. Door de grote schuifpui aan de achterzijde is dit een heerlijke lichte ruimte.

Via de schuifpui in de keuken bereik je de zonnige, op het westen gelegen achtertuin. De tuin is in 2023 voorzien van nieuwe tegels en is extra breed doordat het een eindwoning betreft. Tevens is de tuin dieper (vergeleken met de andere tuinen in de straat) doordat de steeg bij de tuin betrokken is. In de tuin staat een houten berging en er hangt een elektrische zonnescherm.

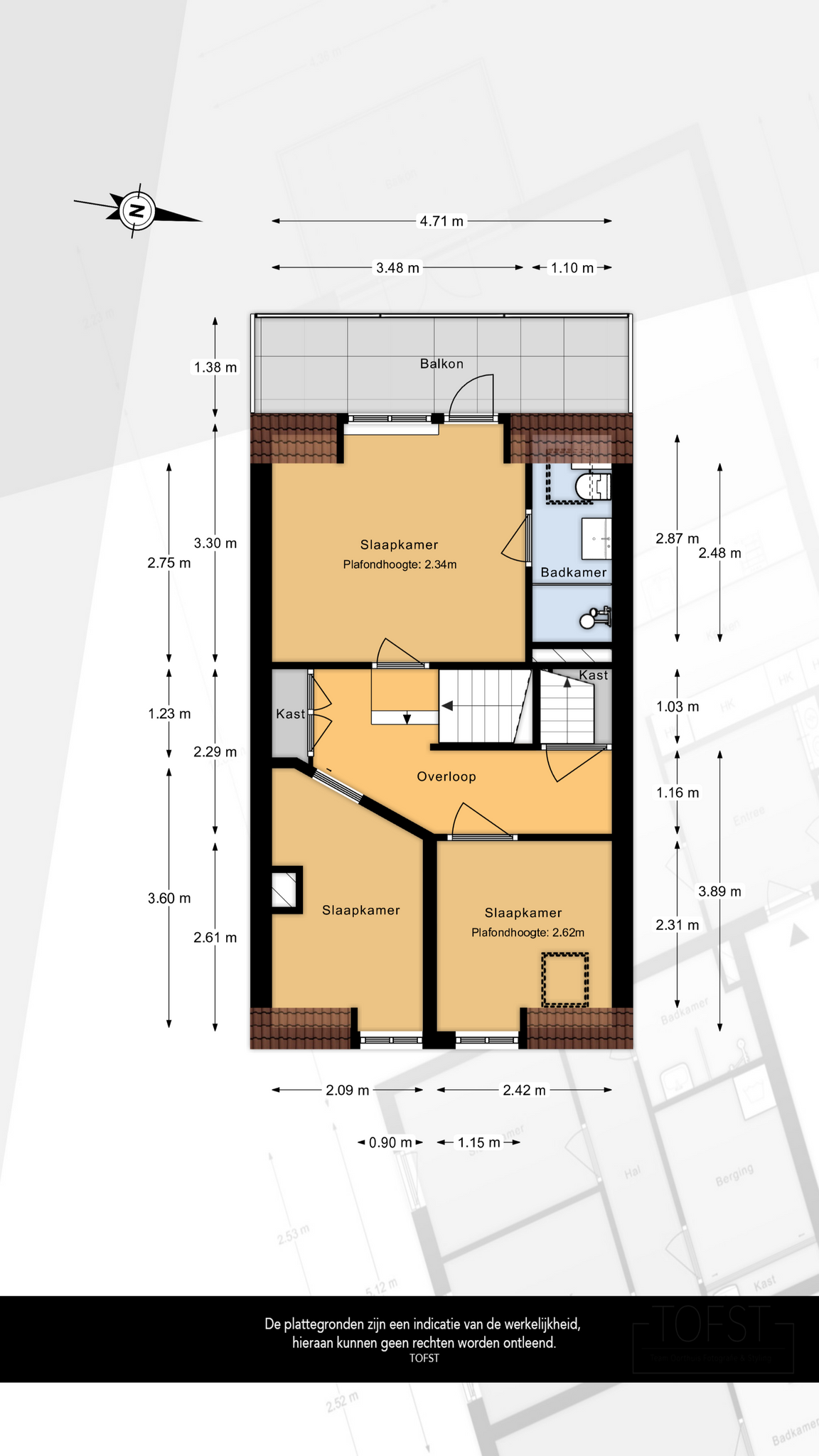
Eerste verdieping
Middels de open trap vanuit de woonkamer bereikt u de overloop met vaste kasten en toegang tot de slaapkamers. Deze gehele etage is voorzien van een mooie laminaatvloer.

De grootste slaapkamer bevindt zich aan de achterzijde van de woning. Bij deze slaapkamer zijn de dakspanten en het houten plafond in het zicht. Vanuit deze slaapkamer zijn het achterbalkon en de badkamer te bereiken.

De badkamer is voorzien van een douchehoek met zowel regen- als handdouche, wastafelmeubel, tweede toilet (sanibroyeur) en dakraam. Slaapkamer 2 bevindt zich aan de voorzijde, heeft een dakkapel en een vaste kast. Slaapkamer 3 bevindt zich aan de voorzijde en is voorzien van een dakkapel en Velux dakraam.

Vanuit de overloop is door middel van een staande trap de beloopbare vliering bereikbaar. De vliering beschikt over een dakraam en een vast ingebouwd tweepersoonsbed. Deze ruimte is uitstekend te gebruiken als logeerkamer en als werkplek. Tevens biedt deze ruimte een overmaat aan opslagmogelijkheden.

Bijzonderheden:
– Karakteristieke woning gelegen in de geliefde Oostwijk;
– Woonoppervlakte circa 81 m² (gemeten volgens de meetinstructie);
– Bouwjaar 1900;
– Gelegen op eeuwigdurende lage erfpacht van € 5,45 per jaar;
– Energielabel G (conform de oude regelgeving);
– Achtertuin gelegen op het zonnige westen voorzien van berging en achterom;
– Centrale ligging: nabij het centrum met verschillende supermarkten, divers winkelaanbod, bioscoop, sportscholen, theater, gezellige horecagelegenheden, goede scholen, openbaar vervoer als bus en metro en uitvalswegen als de A4 en de A20;
– Voor een wandeling is stadspark ‘t Hof met dierenweide om de hoek gelegen;
– De ouderdomsclausule zal opgenomen worden in de koopovereenkomst.
– Oplevering in overleg;

Overige
Huis kopen? Neem uw eigen NVM Aankoopmakelaar mee!
Download nu via www.dewittegarantiemakelaars.nl de brochure van deze woning.

Een daadwerkelijke koopovereenkomst komt pas tot stand nadat beide partijen de schriftelijke overeenkomst hebben ondertekend.

Toelichtingsclausule Meetinstructie
De Meetinstructie is gebaseerd op de NEN2580. De Meetinstructie is bedoeld om een meer eenduidige manier van meten toe te passen voor het geven van een indicatie van de gebruiksoppervlakte. De Meetinstructie sluit verschillen in meetuitkomsten niet volledig uit, door bijvoorbeeld interpretatieverschillen, afrondingen of beperkingen bij het uitvoeren van de meting.

Nadrukkelijk zij vermeld, dat deze vrijblijvende informatieverstrekking niet als een aanbieding of een offerte mag worden beschouwd. Aan deze gegevens kunnen geen rechten worden ontleend.

  • 81 m2
  • 80 m2
  • 3

Kenmerken Wilhelminastraat 70

Overdracht

Vraagprijs€ 369.000,- k.k.
AanvaardingIn overleg

Oppervlaktes en inhoud

Perceel oppervlakte80 m2
Woonoppervlakte81 m2
Inhoud322 m3

Bouw

SoortEengezinswoning
BouwvormBestaande bouw
Bouwjaar1900
Dak typeSamengesteld dak
IsolatievormenGrotendeels dubbelglas
EnergielabelG

Indeling

Aantal verdiepingen2
Aantal kamers4
Aantal slaapkamers3
Aantal badkamers1

Maandlasten

Ligging Wilhelminastraat 70

Voorzieningen

Centraal gelegen informatie over de buurt

Aantal inwoners

In de gemeente

71.999

Leeftijd

in percentages van totaal

Huishoudsamenstelling

in percentages van totaal

44%

20% NL

24%

20% NL

32%

20% NL

Vergelijkbaar woningaanbod