Ga naar inhoud

Te koop: appartement Markgraaflaan 17 3131 VK Vlaardingen

De Witte Garantiemakelaars Vlaardingen
Neem contact met mij op

Verkocht

€ 269.500,- k.k.

bied op deze woning

Midden in het centrum ligt deze leuke 3 kamer bovenwoning van 85 m² met een sfeervolle woonkamer, moderne witte open keuken, heerlijk dakterras, twee goede slaapkamers en een ruime badkamer. Dit alles gelegen op eigen grond.

Bij binnenkomst op de begane grond loopt u de trap op naar de eerste verdieping en komt u uit in de royale woonkamer met fraaie parketvloer en aan de voorzijde een karakteristieke erker. De moderne witte open keuken ligt aan de achterzijde, waar ook voldoende plek is voor een grote eettafel. Via de keuken is er toegang tot het dakterras.

Op de tweede verdieping vindt u twee goede slaapkamers en een ruime badkamer met ligbad, douchecabine, wastafel en tweede toilet. Ook bevindt zich hier de opstelling van de wasmachine en wasdroger.

Deze leuke woning is gebouwd in het karakteristieke 1932, is geheel voorzien van dubbel glas en maakt onderdeel uit van een actieve vereniging van eigenaren.

Ligging in hartje centrum van Vlaardingen met onder andere een bioscoop, casino, zwembad, winkels, theater en terrasjes. Loop je het centrum uit dan kom je bij de Broekpolder en de Vlaardingse Vaart om in de polder te sporten of te genieten van de natuur. Het openbaar vervoer als bus/metro en diverse uitvalswegen als A4 en A20 zijn ook op korte afstand bereikbaar om binnen 25 minuten in Rotterdam, Delft of Hoek van Holland strand uit te komen.

Indeling:

Begane grond
Eigen entree met meterkast en trapopgang naar de eerste etage.

Eerste etage
Overloop voorzien van parketvloer en toegang tot het geheel betegelde toilet met wandcloset en fonteintje. De ruime en lichte doorzonwoonkamer heeft een prachtig ornamenten plafond en parketvloer. Aan de achterzijde bevindt zich de open keuken. De open keuken in hoogglans wit heeft een hoekopstelling, een hardstenen aanrechtblad, veel kastruimte en diverse inbouwapparatuur waaronder een elektrische kookplaat, afzuigkap, oven, koel/vriescombinatie en vaatwasser. Vanuit de keuken is er toegang tot het heerlijke dakterras. Het dakterras is voorzien van vlonders en gelegen op het westen.

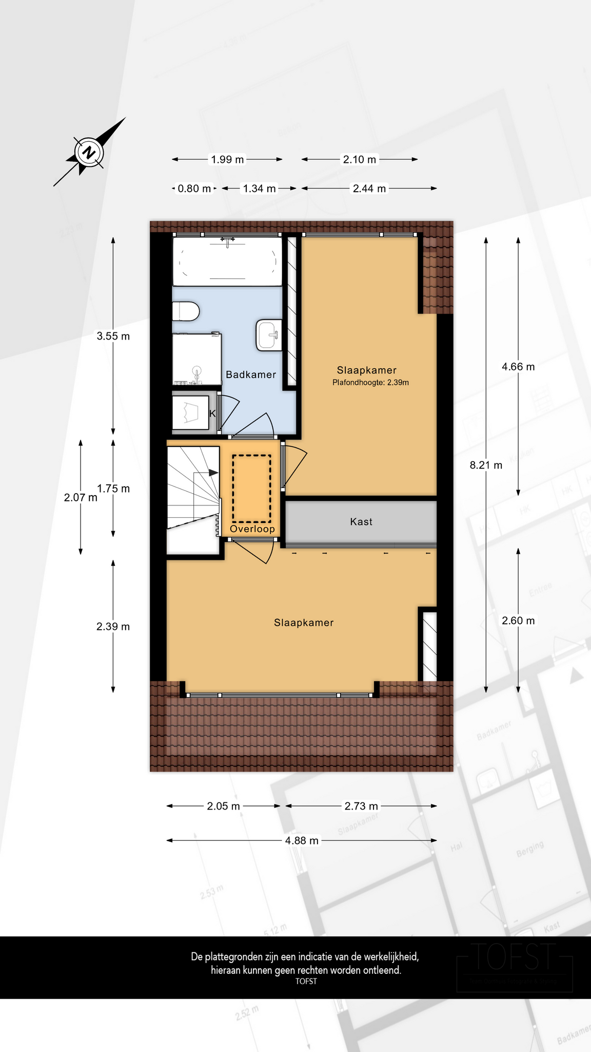
Tweede etage
Overloop met toegang tot alle vertrekken en de vliering. Ruime slaapkamer aan de voorzijde van circa 13 m² met ingebouwde kast met schuifdeuren. Tweede slaapkamer aan de achterzijde van circa 12 m². Royale licht betegelde badkamer voorzien van ligbad, douchecabine, wastafel, tweede toilet, designradiator en aparte kast met de aansluiting voor de wasmachine en opstelling Cv combiketel.

Bijzonderheden:
– Leuke 3 kamer bovenwoning met sfeervolle woonkamer en twee fijne slaapkamers;
– 85 m² woonoppervlakte (conform meetinstructie);
– Verwarming en warm water middels CV ketel, Remeha, 2016.
– Gelegen op eigen grond.
– Actieve VvE met een bijdrage € 70,- per maand.
– Geheel voorzien van dubbel glas.
– Oplevering in overleg.

Overige
Huis kopen? Neem uw eigen NVM Aankoopmakelaar mee!
Download nu via www.dewittegarantiemakelaars.nl de brochure van deze woning.

Een daadwerkelijke koopovereenkomst komt pas tot stand nadat beide partijen de schriftelijke overeenkomst hebben ondertekend.

Toelichtingsclausule Meetinstructie
De Meetinstructie is gebaseerd op de NEN2580. De Meetinstructie is bedoeld om een meer eenduidige manier van meten toe te passen voor het geven van een indicatie van de gebruiksoppervlakte. De Meetinstructie sluit verschillen in meetuitkomsten niet volledig uit, door bijvoorbeeld interpretatieverschillen, afrondingen of beperkingen bij het uitvoeren van de meting.

Nadrukkelijk zij vermeld, dat deze vrijblijvende informatieverstrekking niet als een aanbieding of een offerte mag worden beschouwd. Aan deze gegevens kunnen geen rechten worden ontleend.

  • 85 m2
  • 2

Kenmerken Markgraaflaan 17

Overdracht

Vraagprijs€ 269.500,- k.k.
AanvaardingIn overleg

Oppervlaktes en inhoud

Woonoppervlakte85 m2
Inhoud301 m3

Bouw

SoortBovenwoning
BouwvormBestaande bouw
Bouwjaar1932
Dak typeSamengesteld dak
IsolatievormenDubbelglas
EnergielabelE

Indeling

Aantal verdiepingen2
Aantal kamers3
Aantal slaapkamers2
Aantal badkamers1

Maandlasten

Ligging Markgraaflaan 17

Voorzieningen

Centraal gelegen informatie over de buurt

Aantal inwoners

In de gemeente

71.999

Leeftijd

in percentages van totaal

Huishoudsamenstelling

in percentages van totaal

49%

20% NL

26%

20% NL

25%

20% NL

Vergelijkbaar woningaanbod