Ga naar inhoud

Te koop: woonhuis van der Heimstraat 13 3135 NJ Vlaardingen

De Witte Garantiemakelaars Vlaardingen
Neem contact met mij op

Verkocht

€ 350.000,- k.k.

bied op deze woning

Stap binnen in de sfeervolle charme van de geliefde Vlaardinger Ambacht, waar deze betoverende 4-kamer jaren ’50 eengezinswoning op u wacht. Met een ruime achtertuin die uitnodigt tot ontspanning en plezier, biedt dit huis een perfecte combinatie van comfort en karakter.

Geniet van de uitgestrekte uitbouw op de begane grond, waar een royale woonkamer van 34 m² zich uitstrekt met sfeervolle openslaande deuren die het interieur verbinden met de prachtige buitenruimte. De open keuken nodigt uit tot culinaire avonturen terwijl u geniet van het samenzijn met vrienden en familie. Stap naar buiten en laat u verwelkomen door de weelderige achtertuin van bijna 9 meter diep, compleet met een handige berging en een achterom, perfect voor die zonnige barbecues en ontspannen middagen.

Op de slaapetage wachten drie comfortabele slaapkamers op u, elk doordrenkt van rust en sereniteit, zodat u elke nacht in alle luxe kunt rusten.

Deze karakteristieke woning, gebouwd in 1951, heeft door de jaren heen liefdevol onderhoud gekregen, waardoor het een oase van comfort en rust is. Grotendeels geïsoleerd en met energielabel D, biedt dit huis een solide basis om verder te verduurzamen, waardoor u niet alleen bijdraagt aan een beter milieu, maar ook aan lagere energiekosten.
De ligging is in de geliefde jaren ’50 woonwijk Vlaardinger Ambacht met veel jonge gezinnen, is ideaal nabij het stadscentrum, park ‘t Hof, excellente scholen en sportverenigingen voor o.a. voetbal en hockey. De bereikbaarheid is goed middels het openbaar vervoer als bus en metro om binnen 30 minuten uit te komen in Rotterdam, Delft, Den Haag of Hoek van Holland strand.

Benieuwd naar deze leuke en goed verzorgde eengezinswoning? Dan vertellen wij u graag meer tijdens een uitgebreide bezichtiging!

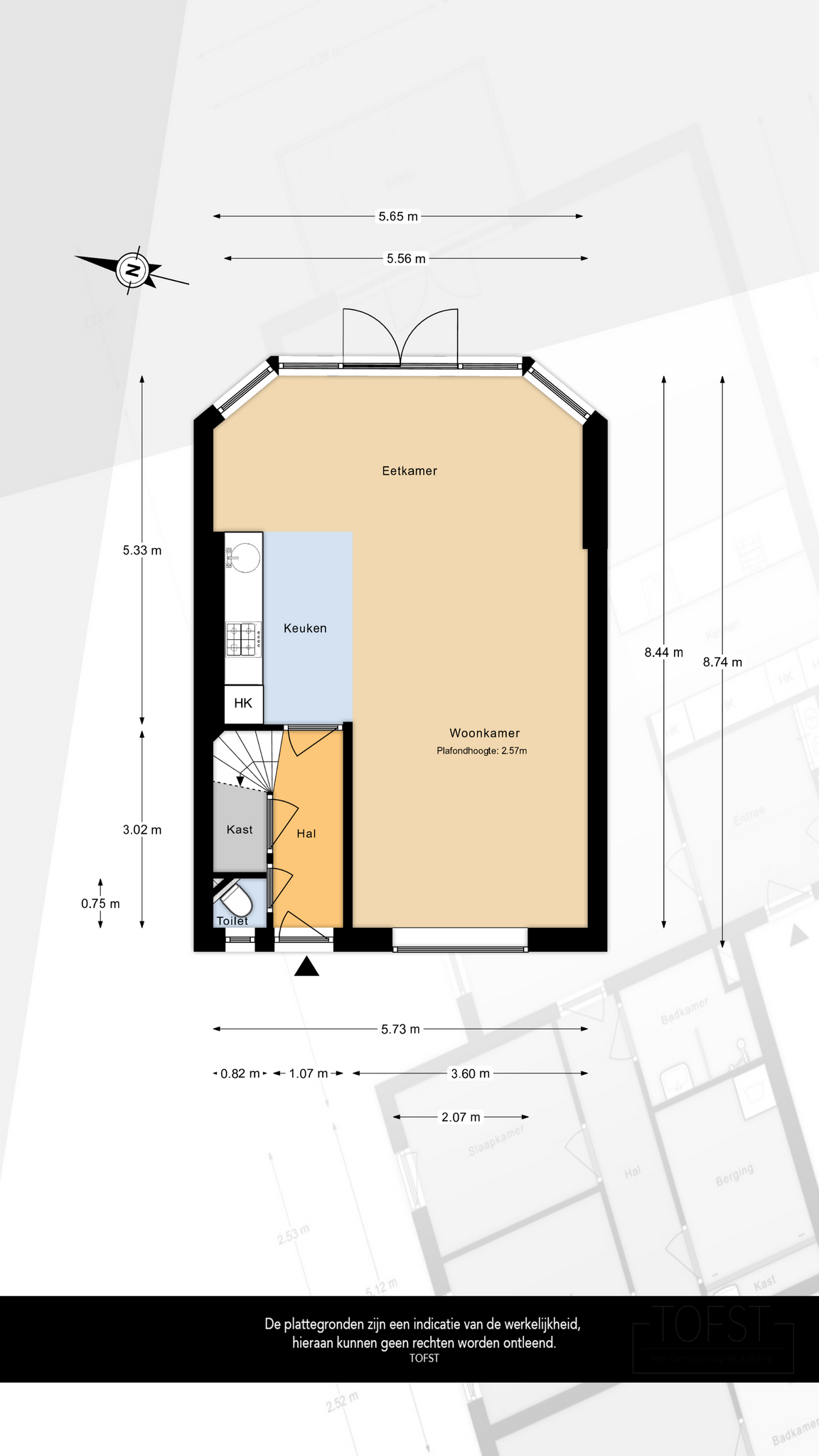
Indeling:

Begane grond
Verzorgde voortuin met sier hekwerk, looppad, plaats voor een zitje in de zon en een groenperkje;
Entree woning onder luifel, gang/hal met garderoberuimte, toilet en toegang tot de woonkamer;
Toiletruimte voorzien van raampje, gedeeltelijk betegeld in lichte kleurstelling en luchtafvoer;

Uitgebouwde woonkamer circa 34 m² voorzien van hout look laminaatvloer, stucwerk afwerking, raam met roedeverdeling en markies aan de voorzijde en aan de achterzijde dubbele openslaande deuren naar de achtertuin;
Keurige open keuken circa 6 m² voorzien van 4-pits gaskookplaat met afzuigschouw, combi magnetron, koelkast en spoelbak;

De onderhoudsarme achtertuin is bijna 9 meter diep, totaal circa 52 m² voorzien van markies, meerdere terrassen, vrijstaande houten berging en een achterom;

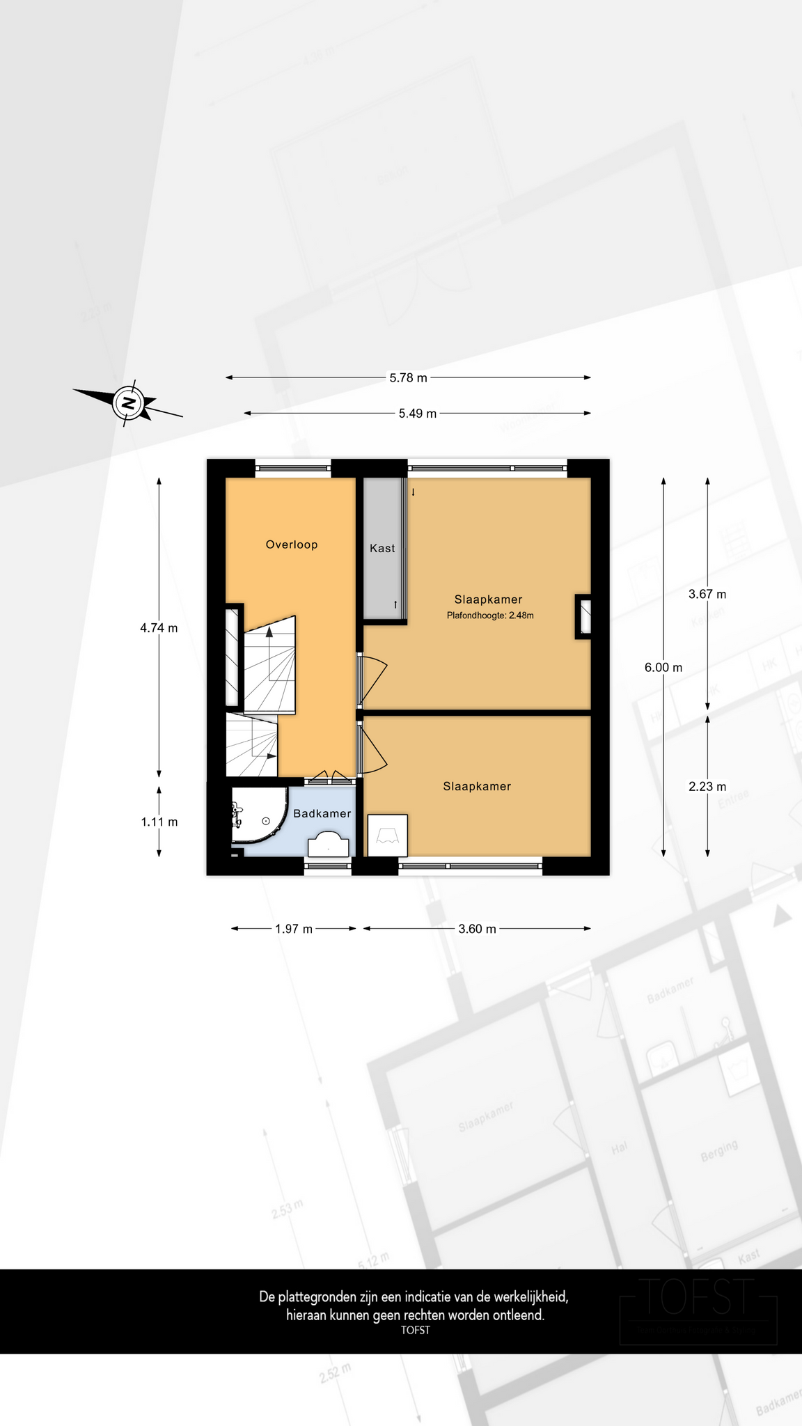
Eerste verdieping
Overloop voorzien van trap naar de tweede verdieping en ideale open werkplek met markies;

Slaapkamer 1 aan de achterzijde circa 13 m² voorzien van hout look laminaatvloer, vaste kasten en markies;
Slaapkamer 2 aan de voorzijde circa 8 m² voorzien van hout look laminaatvloer en markies;

Ruime badkamer circa 2 m² voorzien van douchecabine, wastafelmeubel met spiegelkast, design radiator, verlaagd plafond met inbouwspots en luchtafvoer;

Tweede verdieping
Open zolder te gebruiken als slaapkamer, circa 13 m², met fraaie houten vloer, veel bergruimte en voorzien van dakkapel met verhoogde nok.

Bijzonderheden
– Vergrote 4-kamer eengezinswoning;
– Woonoppervlakte 96 m² (gemeten conform de meetinstructie);
– Heerlijke ruime woonkamer 34 m²;
– Bijna 9 meter diepe achtertuin, totaal circa 52 m² met berging en achterom;
– 3 goede slaapkamers;
– Keurige badkamer voorzien van douchecabine en wastafelmeubel;
– Gebouwd in 1951, goed onderhouden en voorzien van energielabel D;
– Gelegen op 135 m² eigen grond;
– Ligging in geliefde jaren ’30 woonwijk nabij goede scholen, park ‘t Hof en stadshart met alle denkbare voorzieningen, zoals een uitgebreid winkelaanbod, bioscoop, theater, casino en zwembad;
– Binnen enkele minuten fietsen bent u bij het metro- of busstation. U kunt op deze manier of met de autosnelwegen A4 en A20 makkelijk en snel naar Rotterdam, Delft of Hoek van Holland strand;
– Opleveringsindicatie juli 2024.

Overige
Huis kopen? Neem uw eigen NVM Aankoopmakelaar mee!
Download nu via www.dewittegarantiemakelaars.nl de brochure van deze woning.

Een daadwerkelijke koopovereenkomst komt pas tot stand nadat beide partijen de schriftelijke overeenkomst hebben ondertekend.

Toelichtingsclausule Meetinstructie
De Meetinstructie is gebaseerd op de NEN2580. De Meetinstructie is bedoeld om een meer eenduidige manier van meten toe te passen voor het geven van een indicatie van de gebruiksoppervlakte. De Meetinstructie sluit verschillen in meetuitkomsten niet volledig uit, door bijvoorbeeld interpretatieverschillen, afrondingen of beperkingen bij het uitvoeren van de meting.

Nadrukkelijk zij vermeld, dat deze vrijblijvende informatieverstrekking niet als een aanbieding of een offerte mag worden beschouwd. Aan deze gegevens kunnen geen rechten worden ontleend.

  • 96 m2
  • 135 m2
  • 3

Kenmerken van der Heimstraat 13

Overdracht

Vraagprijs€ 350.000,- k.k.
AanvaardingIn overleg

Oppervlaktes en inhoud

Perceel oppervlakte135 m2
Woonoppervlakte96 m2
Inhoud368 m3

Bouw

SoortEengezinswoning
BouwvormBestaande bouw
Bouwjaar1951
Dak typeZadeldak
IsolatievormenDakisolatie, Muurisolatie, Grotendeels dubbelglas
EnergielabelD

Indeling

Aantal verdiepingen3
Aantal kamers4
Aantal slaapkamers3
Aantal badkamers1

Maandlasten

Ligging van der Heimstraat 13

Voorzieningen

Centraal gelegen informatie over de buurt

Aantal inwoners

In de gemeente

71.999

Leeftijd

in percentages van totaal

Huishoudsamenstelling

in percentages van totaal

33%

20% NL

30%

20% NL

36%

20% NL

Vergelijkbaar woningaanbod