Ga naar inhoud

Te koop: woonhuis Willem Frederikstraat 52 3136 BR Vlaardingen

De Witte Garantiemakelaars Vlaardingen
Neem contact met mij op

Verkocht

€ 450.000,- k.k.

bied op deze woning

Op maar liefst 186 m² eigen grond aan het groene en autovrije Gouverneurspad gelegen fraaie 6 kamer hoek eengezinswoning in de geliefde en kindvriendelijke woonwijk Holy Zuid.

Deze 6,25 meter brede woning beschikt over een woonoppervlakte van maar liefst 129 m², heeft een fijne doorzon woonkamer van 30 m², een heerlijke 12 meter diepe achtertuin op het zonnige zuidwesten en op de slaapetages vindt u 5 goede slaapkamers met badkamer. Op de zolder is ook nog een ruime overloop voor een mooie wasruimte. Met een berging in de tuin en diverse bergruimtes op de zolder is er altijd voldoende bergruimte.

Deze prachtige eengezinswoning is gebouwd in 1968, zeer goed onderhouden, geheel voorzien van centrale verwarming, grotendeels geisoleerd, energielabel C, maar bovenal keurig afgewerkt om snel te genieten.

De ligging van deze royale woning is ideaal. Zowel winkelcentrum De Loper, voor al uw dagelijkse boodschappen en een divers winkelaanbod, als het openbaar vervoer als de bus en tram en diverse scholen zijn op loopafstand van de woning gelegen. Indien u van de natuur wenst te genieten dan is op enkele loopminuten afstand natuurgebied de Broekpolder gelegen, waar u gebruik kunt maken van diverse wandel- en fietsroutes.

Indien u op zoek bent naar een ruime, op eigen grond gelegen eengezinswoning dan nodigen wij u graag uit voor een persoonlijke bezichtiging!

Indeling

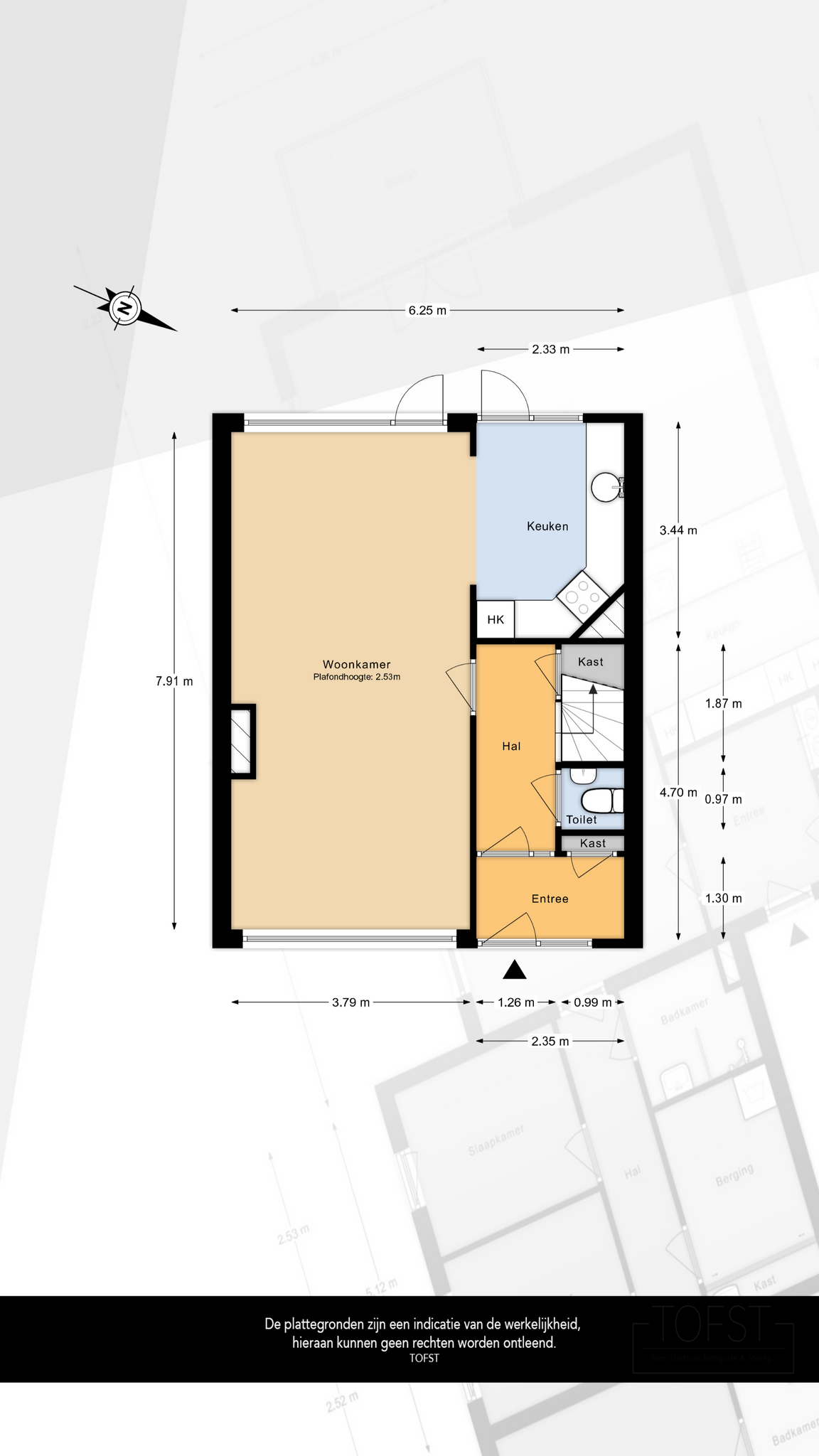
Begane grond
Voortuin met plaats voor de fietsen of een bankje om in de ochtendzon te genieten van de groenstrook aan de voorzijde, entree woning voorzien van tocht hal met meterkast.
Gang voorzien van toilet met hand wasbakje en mechanische afzuiging, vaste trap naar de eerste verdieping en trapkast.

Doorzon woonkamer circa 30 m² voorzien van een parket (frans eiken) vloer, sfeervolle gas open haard en een deur naar de achtertuin.
Keurige keuken circa 8 m² voorzien van een granieten blad en alle hedendaagse inbouwapparatuur als een inductie kookplaat met afzuigschouw, combi magnetron, koel-vriescombinatie, vaatwasser en een spoelbak.

Heerlijk ruime achtertuin van 12 meter, totaal circa 79 m², met meerdere terrassen op het zonnige zuidwesten, groene planten borders en vrijstaande stenen berging van circa 9 m² met overkapping en achterom.

Eerste verdieping
Overloop voorzien van trap naar de tweede verdieping. Alle kamers zijn keurig afgewerkt en voorzien van stucwerk plafonds.

Slaapkamer 1 aan de achterzijde circa 13 m².
Slaapkamer 2 aan de voorzijde circa 10 m².
Slaapkamer 3 aan de achterzijde circa 8 m².
Slaapkamer 4 aan de voorzijde circa 6 m² met balkon.

Badkamer circa 5 m² voorzien van inloopdouche met stortdouche en easy drain regengoot, douchecabine, wastafelmeubel met spiegel, tweede toilet, designradiator, betegeld tot het plafond en een natuurlijke luchtafvoer.

Tweede verdieping
Ruime overloop voorzien van dakraam, opstelling wasmachine en wasdroger, opstelling cv-combiketel en bergruimte.

Slaapkamer 5 circa 18 m² voorzien van dakkapel en wastafel.

Bijzonderheden
– Ruime 6-kamer eengezinswoning in de geliefde woonwijk Holy Zuid;
– Woonoppervlakte 129 m² (volgens de meetinstructie);
– Gelegen op 186 m² eigen grond;
– Doorzon woonkamer circa 30 m² met open haard;
– 12 meter diepe achtertuin met berging en achterom;
– 5 goede slaapkamers en keurige badkamer voorzien van inloopdouche, 2e hangend toilet en wastafelmeubel;
– Gebouwd in 1968, goed onderhouden en voorzien van energielabel C;
– Gelegen in geliefde & kindvriendelijke woonwijk nabij uitstekend winkelcentrum De Loper, openbaar vervoer als bus en tram, goede scholen en uitvalswegen als A4 en A20;
– Recreatie- en natuurgebied Midden Delfland, de Broekpolder en de Vlaardingse Vaart zijn binnen handbereik.
– De woning wordt verkocht in combinatie met de ouderdomsclausule;
– Oplevering in overleg, kan snel.

Overige
Huis kopen? Neem uw eigen NVM Aankoopmakelaar mee!
Download nu via www.dewittegarantiemakelaars.nl de brochure van deze woning.

Een daadwerkelijke koopovereenkomst komt pas tot stand nadat beide partijen de schriftelijke overeenkomst hebben ondertekend

Toelichtingsclausule NEN2580
De Meetinstructie is gebaseerd op de NEN2580. De Meetinstructie is bedoeld om een meer eenduidige manier van meten toe te passen voor het geven van een indicatie van de gebruiksoppervlakte. De Meetinstructie sluit verschillen in meetuitkomsten niet volledig uit, door bijvoorbeeld interpretatieverschillen, afrondingen of beperkingen bij het uitvoeren van de meting.

Nadrukkelijk zij vermeld, dat deze vrijblijvende informatieverstrekking niet als een aanbieding of een offerte mag worden beschouwd. Aan deze gegevens kunnen geen rechten worden ontleend.

  • 129 m2
  • 186 m2
  • 5

Kenmerken Willem Frederikstraat 52

Overdracht

Vraagprijs€ 450.000,- k.k.
AanvaardingIn overleg

Oppervlaktes en inhoud

Perceel oppervlakte186 m2
Woonoppervlakte129 m2
Inhoud456 m3

Bouw

SoortEengezinswoning
BouwvormBestaande bouw
Bouwjaar1968
Dak typeZadeldak
IsolatievormenDakisolatie, Muurisolatie, Grotendeels dubbelglas
EnergielabelC

Indeling

Aantal verdiepingen3
Aantal kamers6
Aantal slaapkamers5
Aantal badkamers1

Kenmerken van verkoper en vrienden

Zelf toevoegen

Ken jij dit huis of deze buurt? Voeg dan in een paar stappen jouw eigen ervaring toe.

Maandlasten

Bewoners en vrienden aan het woord

"Buurtfeestjes worden er in de zomer en winter gegeven. De rust en het uitzicht zijn uniek,dat is de reden dat wij er al 55 jaar wonen. Het rijtje van 4 huizen werden in 1968 verkocht als Herenhuis. Het parkeren van auto,alleen aan de zijkant van het rijtje, geen parkeer problemen. De zon is er al ochtend en middag en avond in achtertuin en ook in de ochtend in de voortuin. De groenstrook voor het uitlaten van honden, is heel gezellig en heel rustgevend."

Maarten van der Schaft

Ligging Willem Frederikstraat 52

Voorzieningen

Centraal gelegen informatie over de buurt

Aantal inwoners

In de gemeente

71.999

Leeftijd

in percentages van totaal

Huishoudsamenstelling

in percentages van totaal

49%

20% NL

31%

20% NL

20%

20% NL

Vergelijkbaar woningaanbod